Live the Lightsview Lifestyle!
IMPORTANT NOTE: Only limited spots are available to view the property at inspection. Submitted applications will be given priority to view. Please complete an application online through the ‘Apply for this property’ button on the property listing on our website (boffo.com.au) with all relevant documentation included.
Available: 29th July
Lease Term: 12 months
Pets: Negotiable
Boasting a stylish, sophisticated and spacious ambiance, this home offers an ideal lock up and leave lifestyle!
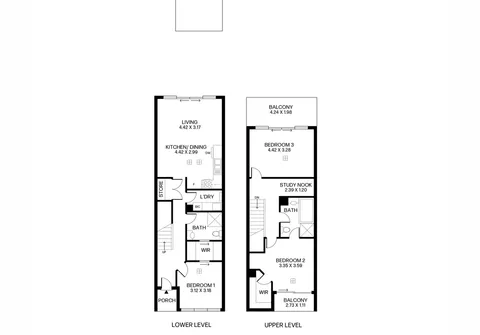
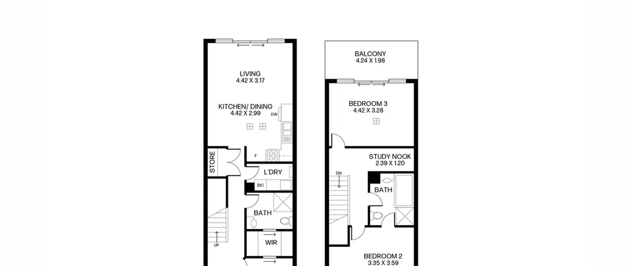
Upper level comprising of:
- Great sized bedroom 2 with walk-in robe, access to bathroom and balcony
- Large 3rd bedroom with sliding doors to the impressive tiled balcony
- Study nook
- Modern bathroom with bathtub and separate shower
- Ducted reverse cycle air-conditioning throughout
- LED downlights
Lower level comprising of:
- Master bedroom with walk-in robe and access to bathroom
- Light-filled open plan living and meals area opening out to the courtyard
- Stylish kitchen with feature bulkhead, dishwasher and gas cook top
- Spacious bathroom with bathtub and separate shower
- Laundry with built-in cupboards
- Ducted reverse cycle air conditioning throughout
- Fully fenced and low maintenance
- Single carport with automatic panel lift door and gate
The suburb of Lightsview has been carefully designed with attention to convenience and open spaces, incorporating pedestrian linkages, 15 hectares of local parks and public reserves, public transport and cycling routes. Located close to Northgate Shopping Centre and a variety of excellent public and private schools. All this and only 7km (approximately) to all the cafes and shopping North Adelaide has to offer and the vibrant Adelaide Oval River precinct and less than 9km (approximately) to the CBD.
Water Charges: Tenants to pay all water supply charge & all water usage
The Landlord cannot guarantee that the property has an active phone line or ADSL/NBN connections or in an internet availability area.
TO VIEW THIS PROPERTY: please enquire via the ‘Book an Inspection’ or ‘Request an Inspection’ button and we will respond with an inspection time (if available). You must be registered for the inspection to attend. If no inspection times are currently available, please submit your details and you will be advised instantly when a new time is available.
By registering, you will be instantly informed of any updates, changes.
RLA 200591
