Six-Bedroom Investment Opposite River Torrens Linear Park
Commandingly positioned opposite the scenic River Torrens Linear Park and within easy walking distance to the Paradise Interchange, providing a seamless commute to the city, this impressive six-bedroom, four-bathroom home presents a compelling investment opportunity.
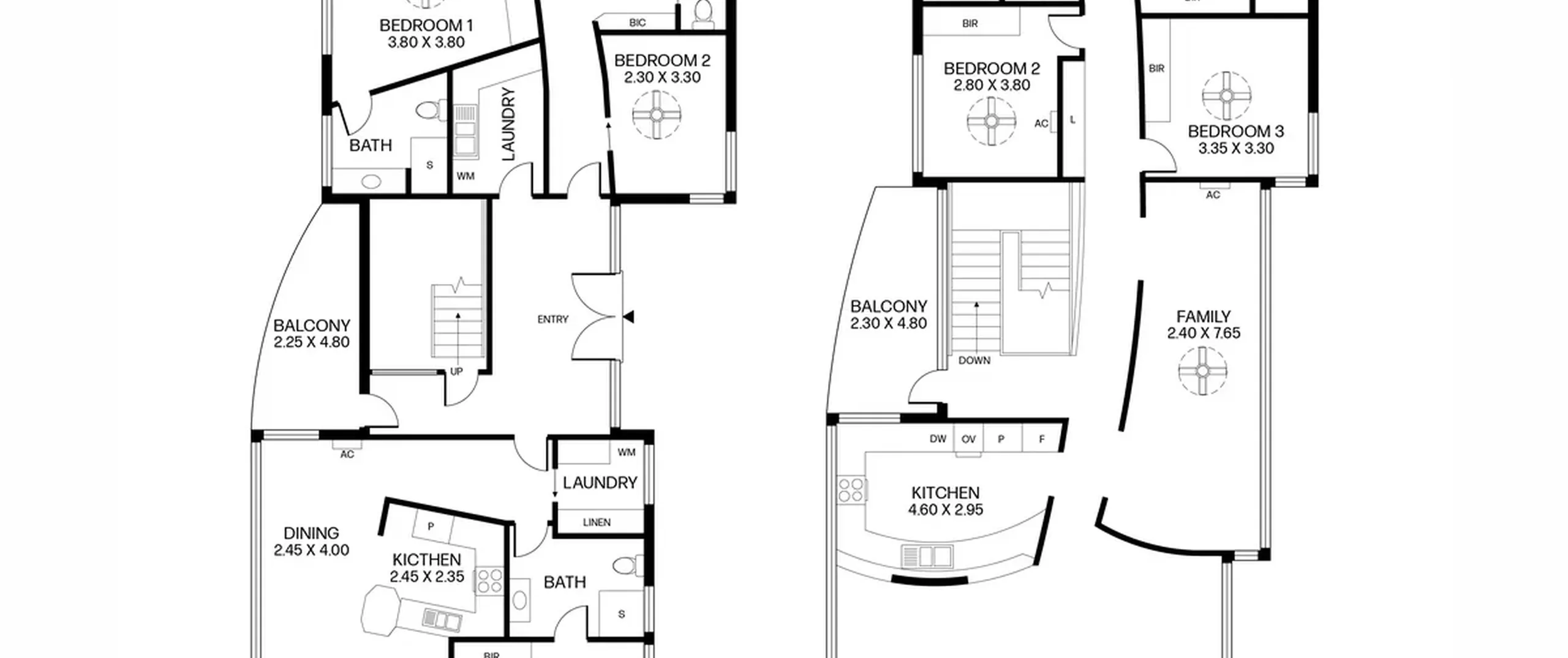
The property features two separate tenancies on the ground level, offering immediate rental income potential while maintaining flexibility for future use.
Set on a generous 722sqm (approximate) allotment with an 18.3m (approximate) frontage, this 1992-built residence occupies a traditionally sized near-City block, giving buyers ample space to enjoy a family-friendly lifestyle. With scope to personalise and add value through thoughtful updates, this home offers the perfect blend of convenience, versatility and long-term potential in a highly sought-after location.
Upper level:
- Large main bedroom with ceiling fan, spa bath, split system air conditioner, walk-in robe, ensuite and balcony
- Two additional bedrooms with ceiling fans and built-in robes
- Open plan living, dining and kitchen area with split system air conditioner
- Second, separate living room with ceiling and split system air conditioner
- Bathroom with shower, bath, toilet and basin
- Balcony
Ground level:
Unit 1:
- Spacious bedroom with ceiling fan, built-in robe and access to bathroom
- Open plan living, dining and kitchen area with split system air conditioner
- Bathroom with shower, toilet and basin
- Separate laundry
- Balcony
- Currently tenanted for $300/week until September 2026
Unit 2:
- Spacious bedroom with ceiling fan, built-in robe and access to bathroom
- Second bedroom with ceiling fan
- Open plan living, dining and kitchen area with split system air conditioner
- Bathroom with shower, toilet and basin
- Additional toilet with basin
- Separate laundry
- Balcony
- Currently tenanted for $300/week until December 2025
Ideally located only minutes away from Greenacres and Lightsview Village Shopping Centre’s, a variety of schools including St Pius X Primary School, Klemzig Primary, Hillcrest Primary, Avenues College and Cedars College. All of this and only 12.6km (approximately) to the Adelaide CBD.
All information contained herewith, including but not limited to the general property description, price and the address, is provided to Boffo Real Estate by third parties. We have obtained this information from sources we believe to be reliable; however, we have not verified and do not guarantee its accuracy. The information contained herewith should not be relied upon and you should make your own enquiries and seek advice in respect of this property or any property on this website.
Looking to purchase this property as an investment? Speak to our Property Management team to see how we can assist.
RLA 313174
