Generous Allotment a Stone's Throw from Linear Park!
Nestled in a desirable location a short walk from the picturesque River Torrens Linear Park Trail sits this original home, positioned on a generous 640sqm (approximate) allotment and provides great potential for the lucky new owner.
You might look to make some cosmetic upgrades and add significant value over time or capitalise on the generous block to build your dream home, equally perfect for investors looking to rent out and reap the rewards. The choice is yours! (subject to all necessary consents).
Features that make this home special:
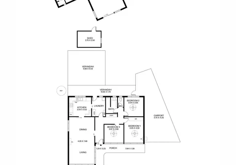
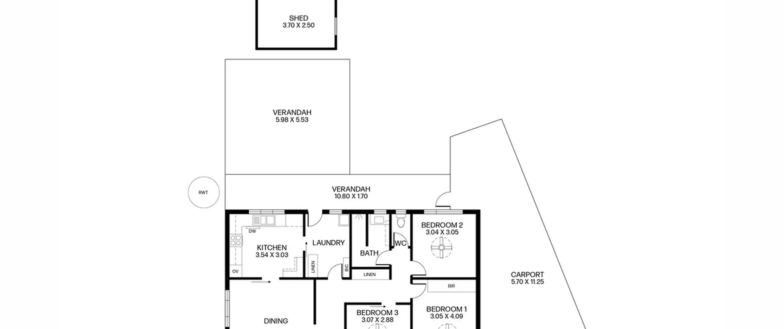
- Three good sized bedrooms all complete with ceiling fans; bedroom one with built-in robe and air conditioning
- Open plan lounge and dining room with air conditioning
- Kitchen with dishwasher, ample bench and cupboard space
- Bathroom with shower, vanity and separate toilet
- Spacious laundry with direct access to rear yard
- Spacious rear yard with verandah and lawn area
- Rumpus room in rear yard with separate kitchen and bathroom
- Garden shed
- Rainwater tank
- Double length carport
Located only minutes away from all the shopping that Gilles Plains, Greenacres and Lightsview Shopping Centre’s have to offer. A variety of schools are in close proximity including Avenues College directly across from the property, Charles Campbell College, Kildare College, St Pius X Primary and Hillcrest Primary. Within easy access to the city via the O-Bahn Paradise Interchange which is only minutes away. All of this and only 13km (approximately) to the Adelaide CBD and 5km (approximately) to all of the shopping and entertainment options that Tea Tree Plaza has to offer.
All information contained herewith, including but not limited to the general property description, price and the address, is provided to Boffo Real Estate by third parties. We have obtained this information from sources we believe to be reliable; however, we have not verified and do not guarantee its accuracy. The information contained should not be relied upon and you should make your own enquiries and seek advice in respect of this property or any property on this website.
The Vendor's Statement (Form 1), the Auction Contract and the Conditions of Sale will be available for perusal by members of the public - (A) at our office located at 78-80 North East Road, Walkerville for at least 3 consecutive business days immediately preceding the auction; and (B) at the place at which the auction is to be conducted for at least 30 minutes immediately before the auction commences.
Looking to purchase this property as an investment? Speak to our Property Management team to see how we can assist.
RLA 313174
