Large Family Entertainer in an Idyllic Location!
Wonderfully located in a quiet cul-de-sac in the heart of the highly sought-after, family-friendly suburb of Redwood Park is this thoughtfully designed and immaculately presented home. Built in 1985, it has undergone extensive renovations to enhance both its functionality and aesthetic appeal.
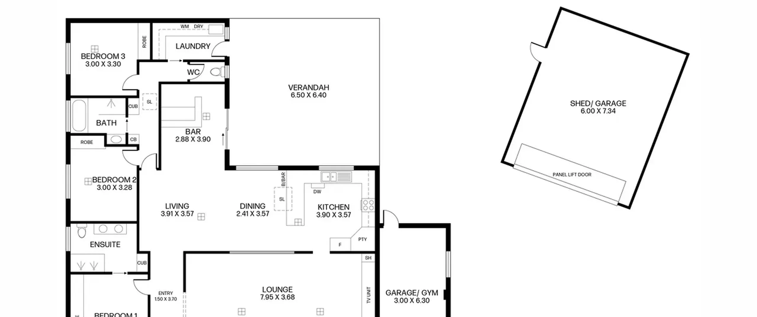
Situated on an expansive 900sqm (approximate) beautifully landscaped allotment, this home provides ample space for the whole family with three spacious bedrooms, two luxurious bathrooms, multiple living areas including a stunning open plan living, dining and kitchen area and large formal lounge room.
Step outside and embrace the perfect blend of relaxation and outdoor enjoyment. The expansive verandah provides a serene retreat where you can unwind with a morning coffee or entertain guests in the fresh air. Beyond the verandah, the lush, green lawn offers plenty of space for children to run freely and pets to play, creating the ideal setting for family fun and cherished memories.
With extensive space to relax and entertain – this is a beautiful home sure to be enjoyed for years to come by the next lucky owners.
Features that make this home special:
- Master bedroom with built-in robe and ensuite featuring floor to ceiling tiling, dual basins and shower heads
- Good-sized bedrooms two and three with built-in robes
- Large formal lounge with plush carpet and built-in TV unit and led lit shelves
- Light filled open plan living, dining, bar and kitchen area with downlights
- Modern kitchen complete with dishwasher, gas cook top, skylight, breakfast bar and ample cupboard and bench space
- Exquisite main bathroom with bath and shower; featuring floor to ceiling tiling
- Separate toilet for convenience; featuring floor to ceiling tiling
- Stylish laundry with direct access to rear yard and verandah; featuring floor to ceiling tiling, splash back and custom joinery
- 14kw reverse cycle ducted heating and cooling throughout with remote control from anywhere via mobile app
- Expansive undercover outdoor entertaining area with exposed concrete mix and honed smooth, led baton lights and pitched roof verandah
- Fire pit area, ideal for roasting marshmallows and enjoying quality time with family
- Wrap around vegetable garden around the fire pit area for the passionate home cook
- Landscaped front and rear garden with spacious lawn area for kids and pets to play
- Additional verandah/gazebo for a quiet escape that overlooks the lawn (only 3 months old)
- Newly installed, double garage/shed with concrete and panel-lift door
- Single carport currently utilized as a home office/gym with split system heating and cooling and newly installed panel-lift door
- Ample space in the driveway for caravan, boat or trailer
Additional features:
- Complete new 100mm stormwater installed underground
- New Automatic irrigation throughout the whole property
- Every boundary fence and retaining wall has been replaced in the last 12 months
- Full roof restoration in the last 12 months
- Exposed aggregate concrete in driveway
- Underground provisions for rainwater to the house from back of shed
- High voltage cable run to the shed for the possibilities to power a pool and spa pumps
- Underground conduits run from the front of the house to the power feed in the front garden to accommodate a 3-phase upgrade and NBN to the house. Power conduit run from the house to the front garden to power electric gate.
- Mains water feed run to the front yard for another water point
- New gutters and down pipes on the house
- Eves and facias and pergola have new timber trims, gapped and painted outside the house
- New timber flooring and carpet throughout the whole house
- Square set ceilings through the whole house except bedrooms
- Water plumbed to fridge cavity
- New painting throughout the whole house
- Updated bathrooms with LED lighting and exhaust fans with heater functions
- New windows installed in both bathrooms, second toilet, laundry, carport and new glass sliding door
- New 1200mm door installed in front of the home and on the rear of the carport
- Bluestone rock wall built to retain the front of the block
- WIFI ring camera/sensor light on the front of the shed
- Retractor hose reel included
Superbly located only minutes away from all the shopping and entertainment that Westfield Tea Tree Plaza has to offer, Tea Tree Gully Golf course and Waterworld Aquatic Centre. Within walking distance to a variety of local parks, public transport options and Surrey Downs Shopping Centre. Additionally in close proximity to a variety of excellent public and private schools, including Redwood Park Primary, Banksia Park High, Gleeson College and The Heights.
All information contained herewith, including but not limited to the general property description, price and the address, is provided to Boffo Real Estate by third parties. We have obtained this information from sources we believe to be reliable; however, we have not verified and do not guarantee its accuracy. The information contained should not be relied upon and you should make your own enquiries and seek advice in respect of this property or any property on this website.
The Vendor's Statement (Form 1), the Auction Contract and the Conditions of Sale will be available for perusal by members of the public - (A) at our office located at 78-80 North East Road, Walkerville for at least 3 consecutive business days immediately preceding the auction; and (B) at the place at which the auction is to be conducted for at least 30 minutes immediately before the auction commences.
Looking to purchase this property as an investment? Speak to our Property Management team to see how we can assist.
RLA 313174
