Generous Allotment with a Wide Frontage in a Convenient Location!
This neat three bedroom home is positioned on a generous 596sqm (approximate) allotment with a wide 19.9m (approximate) frontage and is located in a convenient location within walking distance to Para Vista Shopping Centre and Para Vista Oval comprising a playground and a large lawn area for the family to enjoy.
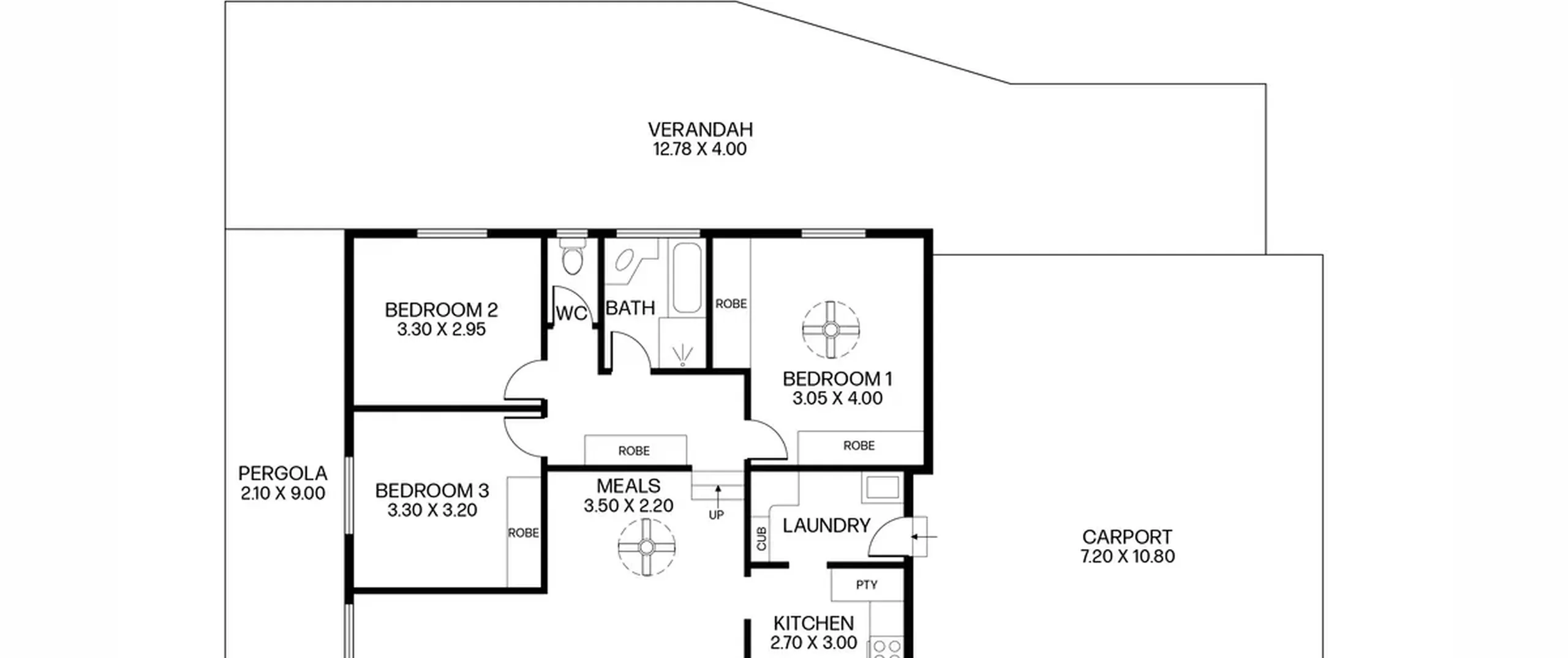
Providing spacious internal living with an open plan living and meals area upon entry that connects seamlessly to the kitchen, along with three well-sized bedrooms. Outside, a spacious outdoor entertaining area overlooks the garden, creating the perfect setting for hosting family and friends. Additionally, providing ample off-street parking for multiple vehicles including your caravan, boat or trailer.
Ideal for moving in and enjoying right away, with the opportunity to make cosmetic upgrades that can add significant value over time. It's also a great option for investors looking to rent out and reap the rewards.
Features that make this home special:
- Three spacious bedrooms
- Bedroom one with built-in robes and ceiling fan
- Bedroom three with built-in robe
- Open plan lounge and meals area with split system air conditioner and ceiling fan
- Kitchen with gas cooktop and ample bench and cupboard space
- Bathroom with separate bath and shower
- Separate toilet for convenience
- Laundry with access to rear yard
- Expansive verandah overlooking rear yard
- External study/office with split system air conditioner and ceiling fan
- Double width and length carport to accommodate four vehicles; with roller doors
- 8.85KW solar electrical system with 19 panels
- Gas hot water system
Located a short drive from Ingle Farm Plaza, a variety of schools including East Para Primary, Para Vista Primary and Good Shepherd Lutheran School. Additionally, just 3.8km (approximately) to all of the shopping and entertainment options that Tea Tree Plaza has to offer.
All information contained herewith, including but not limited to the general property description, price and the address, is provided to Boffo Real Estate by third parties. We have obtained this information from sources we believe to be reliable; however, we have not verified and do not guarantee its accuracy. The information contained should not be relied upon and you should make your own enquiries and seek advice in respect of this property or any property on this website.
The Vendor's Statement (Form 1), the Auction Contract and the Conditions of Sale will be available for perusal by members of the public - (A) at our office located at 78-80 North East Road, Walkerville for at least 3 consecutive business days immediately preceding the auction; and (B) at the place at which the auction is to be conducted for at least 30 minutes immediately before the auction commences.
Looking to purchase this property as an investment? Speak to our Property Management team to see how we can assist.
RLA 313174
