Ready to Move In or Invest in a Prime City Fringe Location!
Perfectly set within a small group of two in a prime street facing location, this easy-care solid brick residence offers a wonderful lifestyle to the new owner. Nestled on a tree-lined street in Prospect amongst other character homes and across from Percy Street Park comprising a playground for the family to enjoy.
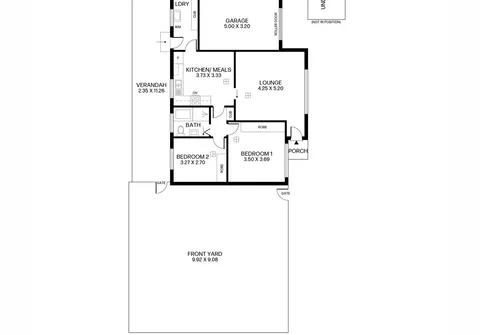
Step inside to the spacious lounge room that flows through to a well-appointed kitchen and adjacent meals area. Two good sized bedrooms, neat bathroom, large verandah, fenced front yard with lawn and secure garage completes this exceptional offering.
Your new home boasts an enviable location within a short distance to an abundance of cafes, restaurants, boutique shopping and entertainment located on Prospect Road. Additionally, a short distance to local reserves and the scenic Adelaide Parklands serving as your extended backyard and inviting you to enjoy leisurely strolls and various recreational amenities.
Whether you are looking for a home to live in within this in demand area or searching for a quality investment property, then this residence could be the one for you.
Features that make this home special:
- Two bedrooms with built-in robes
- Separate, spacious lounge room with gas heater
- Dine in kitchen with ample cupboard and bench space
- Bathroom with separate bath and shower
- Separate laundry with extensive cupboards for storage
- Linen press
- Evaporative air-conditioning
- Full length verandah, perfect for outdoor entertaining
- Large front fenced yard with lawn
- Single garage with remote roller door
- Additional undercover carpark
Additional features:
- Self-managed, no strata fees
- Gas hot water
- Recently painted and installed carpet
Your new home is delightfully close by to public transport options and only 9.3kms (approximately) to the CBD. A range of amenities at your doorstep including Sefton Plaza, Target and Northpark Shopping Centre. In close proximity to some of Adelaide’s best public and private schools including Blackfriars Priory, Prospect Primary and Nailsworth Primary.
All information contained herewith, including but not limited to the general property description, price and the address, is provided to Boffo Real Estate by third parties. We have obtained this information from sources we believe to be reliable; however, we have not verified and do not guarantee its accuracy. The information contained herewith should not be relied upon and you should make your own enquiries and seek advice in respect of this property or any property on this website.
The Vendor's Statement (Form 1), the Auction Contract and the Conditions of Sale will be available for perusal by members of the public - (A) at our office located at 78-80 North East Road, Walkerville for at least 3 consecutive business days immediately preceding the auction; and (B) at the place at which the auction is to be conducted for at least 30 minutes immediately before the auction commences.
RLA 313174
