Torrens Title Home in a Premier Locale!
Nestled in a quiet, family-friendly cul-de-sac, this circa 2017 home offers contemporary, low-maintenance living and is perfectly suited to a broad range of buyers - whether you're a first-home buyer, investor or retiree seeking a laid-back lifestyle.
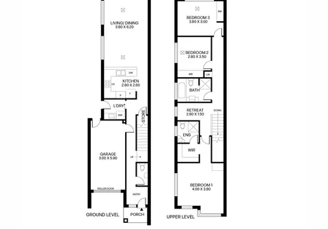
Bathed in natural light, this thoughtfully designed floor plan provides a practical separation between entertaining areas and quiet zones for rest and relaxation. Whether you're hosting guests or enjoying peaceful downtime, the layout caters to a variety of lifestyles.
Ideally situated, the home is just a short distance from a range of convenient amenities, local parks, schools and public transport, offering both comfort and connectivity for everyday living.
Features that make this home special:
Upper level:
- Bright and generously sized master bedroom complete with a walk-in robe and private ensuite
- Bedrooms two and three are located at the rear of the home and feature built-in robes
- Stylish main bathroom showcasing an oversized shower, floor to ceiling tiles, bath and toilet
- Separate retreat area offering flexibility for additional living or study space
- Handy linen cupboard providing extra storage options
Ground level:
- Sleek and modern white kitchen equipped with a gas cooktop, stainless steel appliances, dishwasher, breakfast bar and an abundance of storage space
- Light filled and airy open-plan living and dining area, seamlessly connecting to a covered alfresco through double sliding doors - perfect for entertaining guests
- Additional powder room for added convenience
- Functional laundry with direct access to the rear yard
- Low-maintenance, fully fenced backyard featuring a rainwater tank, clothesline and artificial lawn
- Secure single garage with roller door access and an additional pedestrian door to the rear yard
- Currently tenanted on a periodic lease at $680 per week
Ideally located in the heart of Hectorville, this home offers effortless access to Newton Village Shopping Centre for all your daily needs. Just steps away, Denis Morrissey Park and its scenic walking trail provide a perfect escape into nature. With excellent public transport options nearby, including convenient bus routes, commuting to the city and surrounding suburbs is simple and stress-free. Situated just 11.6km (approximately) from the Adelaide CBD, this address delivers the ideal blend of peaceful suburban living with the convenience of urban accessibility.
All information contained herewith, including but not limited to the general property description, price and the address, is provided to Boffo Real Estate by third parties. We have obtained this information from sources we believe to be reliable; however, we have not verified and do not guarantee its accuracy. The information contained herewith should not be relied upon and you should make your own enquiries and seek advice in respect of this property or any property on this website.
Looking to purchase this property as an investment? Speak to our Property Management team to see how we can assist.
RLA 313174
