Renovated Family Residence in a Tightly Held Location!
Welcome to this gorgeous 1950’s built and renovated home that effortlessly blends timeless character with contemporary features, creating a truly enchanting home. Situated on a large 772sqm (approximate) block, it provides plenty of space for both indoor and outdoor living.
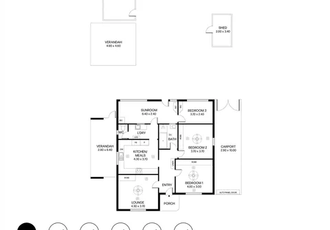
As you approach this beautiful home, you'll be greeted by a charming facade that leads through to well-proportioned rooms inside. Comprising three good sized bedrooms, central bathroom, warm and inviting formal living room, updated kitchen with floorboards and a sunroom; this area has the flexibility to be whatever you want it to be. With room to move and relax, the back garden offers a great undercover entertaining area and mature trees; a perfect place to read a book or watch the kids play. Completing the offering is a secure double length carport with automatic panel door.
Your new home boasts an enviable location in a beautiful tree-lined street and within a short drive to all of the shopping, eating and entertainment options that King William Road and Unley Road have to offer. Additionally, a short distance to a variety of reserves and playgrounds.
Whether you are looking for a home to live in within this in demand area or searching for a quality investment property, then this stylish residence could be the one for you.
Features that make this home special:
- Three good sized bedrooms, bedrooms one and two with built-in robes and ceiling fans, bedroom three with built-in cupboard
- Separate lounge room with built-in robe and ceiling fan
- Beautifully updated modern kitchen with mirrored splash back, dishwasher, black gas cooker, oven and rangehood
- Large sunroom, that can be converted to a dining room
- Central bathroom with bath, shower and skylight
- Modern laundry space
- Ducted gas heating and evaporative cooling (excluding bedroom 3 and sun room as shown on floor plan advertised)
- Double glazed windows to lounge, kitchen, bedroom one and two
- Verandah for outdoor entertaining
- Expansive rear yard
- Two good size garden sheds
- Dual length carport with automatic panel door
Your new home is delightfully close by to public transport options and only 7.4kms (approximately) to the CBD. A range of amenities at your doorstep including Castle Plaza, Mitcham Square Shopping Centre, restaurants and cafes. Additionally located nearby to many sought-after schools including Edwardstown Primary, Emmaus Christian College, Forbes Primary and St. John the Baptist Catholic Primary.
All information provided has been obtained from sources we believe to be accurate, however, we cannot provide any guarantee and we accept no liability for any errors or omissions (including but not limited to a property's land size, floor plans and size, building age and condition). Interested parties should make their own inquiries and obtain their own legal advice.
RLA 313174
