"Highgrove House" - An Estate for the Generations
Welcome to Highgrove House, a landmark estate nestled in the scenic heart of Wynn Vale, to cast an outlook as wide as its far-reaching footprint. This iconic property, cherished by the same family for 30 years, sprawls over a magnificent 1980sqm (approximate), complete with sweeping views of the hills and treetops.
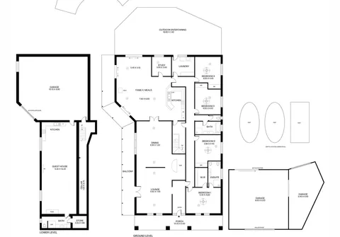
Designed with a seamless blend of character and comfort, this solid bluestone residence features four double bedrooms, two bathrooms, a study/5th bedroom, a self-contained guest house and secure undercover parking for up to 8 cars. Showcasing an impressive grand entrance, the stately formal living and dining areas boast 12 feet (approximate) high ceilings, hardwood floorboards and solid merbau skirting boards. Relish the French doors opening to a balcony with serene views of a lush reserve and enjoy city living with rural comforts. The stunning open plan family, meals and kitchen area makes the heart of the property, there’s nowhere else you’d rather be. The timeless kitchen exudes charming character, boasting solid timber cabinetry and ample storage to impress even the most discerning home chef.
The property’s outdoor offerings include a stunning infinity-edge pool, framed by an expansive pool deck - a perfect spot for lounging and enjoying the sunshine. Entertain family and friends in the vast covered outdoor space with electric blinds, or venture into the wine cellar, complete with a natural earth wall, for an evening of indulgence. With an expansive lawned area, enjoy the freedom of entertaining those large family celebrations with direct access for even a food truck!
Incredibly thought out from its design and maximising every space, this home accommodates plenty of off-street and undercover parking or provides the perfect use of storing large vehicles or caravans. The property also offers a private, self-contained guest house room with its own kitchen and bathroom on the lower level, ideal for multi-generational living, as a business opportunity, or as a rental for additional income.
Simply move in, unpack and enjoy this extraordinary home, where cherished memories are destined to be made.
Features that make this home special:
- Grand master suite with spacious ensuite and walk-in robe
- 3 additional double bedrooms all completed with built-in robes and ceiling fans
- Valuable study room or 5th bedroom
- Huge formal lounge and dining area with polished floorboards and a bar, perfect for entertainer’s dream
- French double doors leading out to balcony with views of the reserve where you can take in the serenity
- Magnificent open-plan family and meals area with combustion heater and glass doors overlooking the reserve and pool area
- Solid timber kitchen with 900mm cooktop, oven, and ample bench and storage spaces
- Spacious laundry with built-in storage
- Expansive covered outdoor entertaining area looking out onto reserve and electric retractable screens for optional enclosed space
- Fabulous family times ahead in the large infinity edge concrete tiled pool 90,000 litre, plus large pool deck
- Huge lawn area, easy-care gardens, fruit trees and automated irrigation system
- Self-contained apartment under main residence with separate heating and cooling offering multi-generational living
- Sensational spacious wine cellar with natural earth wall
- Undercover garage underneath house for 4 cars, plus additional driveway parking
- Olympic garage adjacent workshop, ensures all your parking and storage needs are met
Additional features:
- Quality hardwood timber work and 3m ceiling throughout
- 3 phase power to house, downstairs garage and separate workshop
- Commercial grade air conditioning and gas ducted heating
- 10kW solar system
- 96,000L rainwater tanks under pool decking
- Security system – Hik vision
- Window shutters to bedrooms and guesthouse
Ideally located nearby walking trails, Wynn Vale Dam and several parks as well as being close to a variety of sought-after schools including Pedare Christian College, Gleeson College, Golden Grove High School and King's Baptist Grammar School. Several public transport options nearby with direct access via the O-Bahn to the city. All of this and located only a short walking distance to the shopping and entertainment offered at Golden Grove Village and only a short drive to the larger Tea Tree Plaza shopping complex.
All information provided has been obtained from sources we believe to be accurate, however, we cannot provide any guarantee and we accept no liability for any errors or omissions (including but not limited to a property's land size, floor plans and size, building age and condition). Interested parties should make their own inquiries and obtain their own legal advice.
Looking to purchase this property as an investment? Speak to our Property Management team to see how we can assist.
RLA 313174
