Family Entertainer
This updated 1988 built family home situated on a 672sqm (approximate) block in the highly sought after suburb of Wynn Vale is sure to impress with perfect natural flow from the internal living areas to the large external entertaining areas.
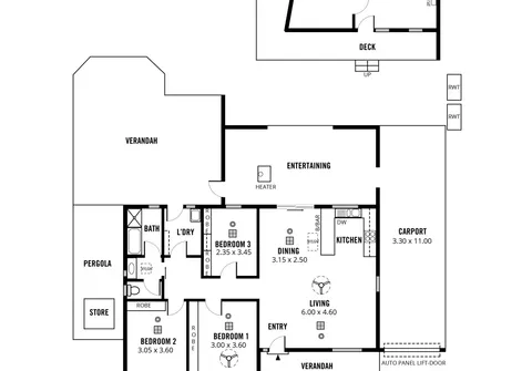
Features that make this home special:
- Bedroom 1 with built-in robe and ceiling fan
- Good sized bedroom 2 and 3; both with built-in robes
- Spacious open plan living and dining
- Modern kitchen with timber bench top breakfast bar, ample cupboard space and gas cooking
- Neat and tidy bathroom with bath, separate shower and separate toilet
- Functional laundry with external access
- Ducted evaporative cooling and ducted gas heating
- Large partially enclosed outdoor entertaining area with heater
- Verandah with gabled roof
- Pergola to side of house with storage area
- Fully lined external studio with split system air conditioner
- Low maintenance fully fenced yard with 2x rain water tanks
- Double length carport with automatic panel door
Ideally located close to a variety of sought after schools including Pedare Christian College, Gleeson College, Golden Grove High School and King's Baptist Grammar School. Several public transport options nearby. All of this and only a short walk to all of the shopping and entertainment offered at Golden Grove Village
For further information please contact Jimmy Wu on 0417 874 084 or 8269 7711 (office).
RLA 200591
