Multiple Income Producing Investment in Great Location!
Astute investors take note - a rare opportunity is on offer to secure 2 properties on 1 Title!
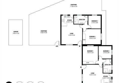
Two 2 bedroom self-contained units with a spacious yard providing an outstanding investment opportunity. Set on a generous 650sqm (approximate) block with a wide 21.3m (approximate) frontage, these low maintenance, single storey units in a neat and tidy complex are located just a short drive to all amenities at Gilles Plains Shopping Centre.
Features that make these units special:
- Two good sized bedrooms, bedroom 1 with built-in robe
- Spacious lounge
- Neat and tidy kitchen
- Bathroom with laundry facilities
- Generous rear/side yard
- Undercover allocated carport for each unit
- Combined water, Individual power
- Unit 1 currently tenanted for $250 per week
Located nearby to Gilles Plains Shopping Centre and only a short drive to all the entertainment and shopping that Westfield Tea Tree Plaza has to offer. Parks, public transport including Paradise Interchange and the O-Bahn, quality schools and multiple sporting facilities are all nearby. Located less than 10kms (approximately) to the CBD, vibrant North Adelaide and everything the Adelaide Oval precinct has to offer.
Act now - this rare find won't last long!
For further information please contact Robert Lonie on 0419 129 009 or Scott McNeela on 0455 800 848 or 8269 7711 (office).
RLA 200591
