Value Buying in Fantastic Area
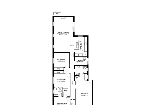
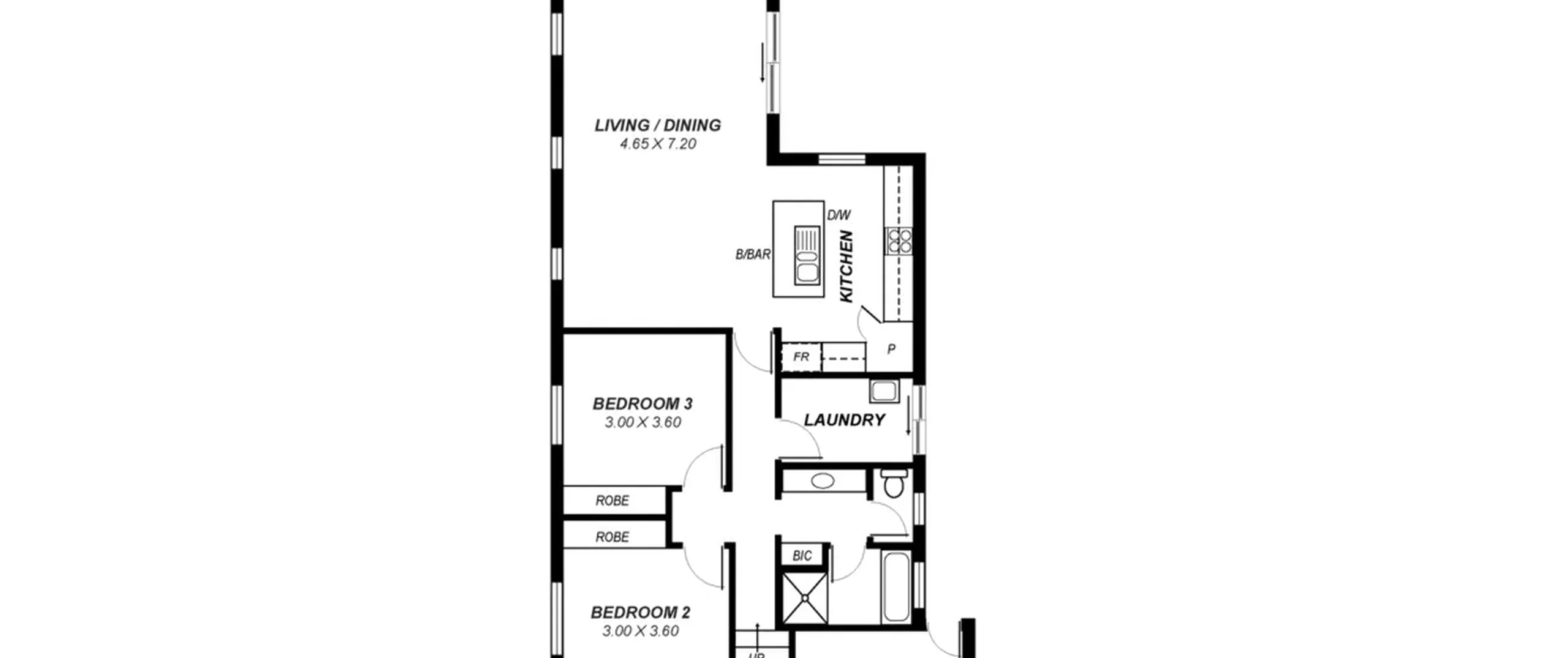
This gorgeous 3 bedroom courtyard home built in 2008 by a boutique builder is ideally positioned on the edge of "Windsor Green" estate. Representing great value for money it is perfect for the first home buyer, downsizer or the savvy investor looking to add to their portfolio.
Features that make this home special;
- Master bedroom with walk-in robe and ensuite
- Good sized bedrooms 2 and 3, both with built-in robes
- Open plan kitchen/living/dining area
- Kitchen with gas cooktop and ample bench and storage space
- Modern main bathroom with separate bath and shower + separate w/c
- Separate laundry
- Split system air conditioning to family area
- Low maintenance front and rear yard
- Rainwater tank
- Single garage with automatic roller door + direct internal access to the home
- 400sqm block (approximate)
In close proximity to local schools, public transport options and the newly renovated Gilles Plains Shopping Centre (new ALDI outlet and Woolworths). All of this, and only approximately 10kms from the Adelaide CBD.
For further information please contact Robert Lonie on 0419 129 009 or 8269 7711 (office).
RLA 265613
