Discover the Opulence Within: A Two-Level Residence of Unmatched Luxury and Comfort!
Welcome to this exquisite 2020 custom built, meticulously designed and immaculately presented home. From the moment you enter, you'll experience a luxurious lifestyle that awaits its new owner. Situated on a beautifully landscaped block of 413sqm (approximately) and is superbly located a stone’s throw from the popular River Torrens Linear Park Trail.
You will be greeted by an elegant facade with stylish, black framed windows and a manicured front garden. Once you step inside you will instantly appreciate the quality fixtures, fittings and modern elegance throughout.
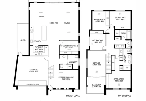
The ground floor boasts a flawless natural flow from the front lounge room to the divine open plan kitchen, living and dining area, through to the impressive tiled alfresco that includes an outdoor kitchen, where you can entertain friends and family with ease. The upper-level hosts four spacious bedrooms, an additional third living space, balcony and two immaculate bathrooms. A generous rear yard and a double garage under the main roof completes this beautiful home.
A home that must be seen to truly be appreciated. Be quick, this one won’t last long!
Features that make this home special:
Lower level featuring:
- Formal lounge room with ample windows for natural light
- Spectacular, light filled open plan living, dining and kitchen area with ample lighting, seamlessly connecting to the alfresco through the large sliding door
- High-end kitchen with large island breakfast bar, elegant marble benchtops and splashback, white cabinetry and built-in coffee machine
- Butler’s kitchen with dishwasher, sink, fridge alcove and an abundance of bench and storage space
- Study/fifth bedroom
- Valuable third bathroom with toilet and shower
- Separate laundry
- Tiled alfresco entertaining area with two ceiling fans and outdoor kitchen comprising BBQ with rangehood, sink, bar fridge and cupboards
- Large lawn area for the kids and pets to play
- Garden shed (5m x 2m approximate)
- Double garage with automatic panel lift door, internal access and rear yard access
Upper level featuring:
- Valuable third living room with access to tiled balcony
- Master bedroom with built-in robes and a stylish ensuite complete with dual above counter wash basins, dual shower heads, shower niche and floor to ceiling tiling
- Three additional good-sized bedrooms all complete with built-in robes
- Contemporary three-way main bathroom with dual above counter wash basins, shower niche, bath niche and floor to ceiling tiling
Additional features:
- Ducted air conditioning
- LED strip stairway lighting
- Alarm system
- Intercom system
- Camera system
- Keyless entry
- Sensor lights in butler’s pantry and downstairs powder room and toilet
- 11.5kw solar electrical system with 30 panels and Fronius inverter
- Exposed aggregate concrete driveway
Located only minutes away from all the shopping that Newton Village, Greenacres and Lightsview Shopping Centre’s have to offer. A variety of schools are in close proximity including Avenues College directly across from the property, Charles Campbell College, Kildare College, St Pius X Primary and Hillcrest Primary. Within easy access to the city via the O-Bahn Paradise Interchange which is only minutes away. All of this and only 12km (approximately) to the Adelaide CBD and 5km (approximately) to all of the shopping and entertainment options that Tea Tree Plaza has to offer.
All information contained herewith, including but not limited to the general property description, price and the address, is provided to Boffo Real Estate by third parties. We have obtained this information from sources we believe to be reliable; however, we have not verified and do not guarantee its accuracy. The information contained should not be relied upon and you should make your own enquiries and seek advice in respect of this property or any property on this website.
The Vendor's Statement (Form 1), the Auction Contract and the Conditions of Sale will be available for perusal by members of the public - (A) at our office located at 78-80 North East Road, Walkerville for at least 3 consecutive business days immediately preceding the auction; and (B) at the place at which the auction is to be conducted for at least 30 minutes immediately before the auction commences.
RLA 313174
