Welcoming and Illuminated Family Haven!
A delightful and bright family-friendly home situated in a sought-after city fringe location. Built in 2014 and boasting three spacious bedrooms, it offers ample space for your loved ones to grow and thrive.
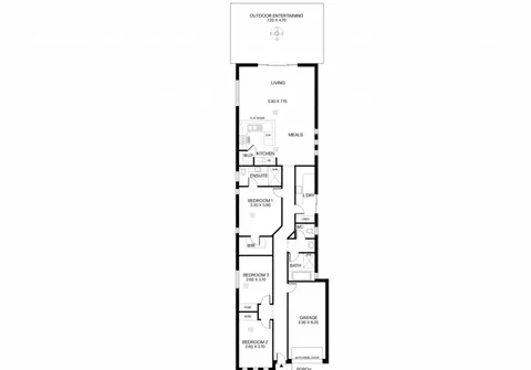
Inside, the open-plan design creates a welcoming atmosphere, with the kitchen seamlessly flowing into the living and meals area. The well-appointed kitchen is a chef's dream, complete with ample room for culinary creations and a convenient walk-in pantry to keep everything organized and easily accessible. This home is an inviting haven, where family moments and cherished memories are waiting to be made.
Outside, the tidy rear yard is a perfect oasis, featuring an expansive undercover area that's ideal for entertaining and relaxing. The low maintenance grassed space ensures your children and pets have plenty of room to play freely.
Features that make this home special:
- Main bedroom with generous walk-in robe and sparkling ensuite
- Bedrooms 2 and 3 both of good size and offering built-in robes
- Contemporary kitchen with subway tile splash back, stainless steel appliances including oven and dishwasher, gas cooktop, walk-in pantry, an abundance of cupboard space and sweeping bench tops with breakfast bar
- Light-filled open plan living and meals area with double sliding doors seamlessly opening onto the outdoor entertaining area
- Well-appointed three-way main bathroom with bath and separate shower
- Practical laundry with linen cupboard and sliding door access
- Ducted air conditioning throughout
- Expansive undercover outdoor entertaining area complete with ceiling fan
- Low maintenance backyard with grass area and garden shed for extra storage space
- Garage with automatic panel door and internal access
- Well maintained front yard with driveway for additional park space
Positioned perfectly in the highly regarded suburb of Windsor Gardens, you are spoilt for choice with a variety of cafés, shops and amenities right at your doorstep. Excellent public and private school options are close by. Only 15 minutes (approximately) away from the Adelaide CBD and only a stone's throw away to the stunning Linear Park. The home truly offers a move-in with nothing to do opportunity.
For further information please contact Jimmy Wu on 0417 874 084, Jackson Pinchbeck on 0455 933 439 or 8269 7711 (office).
All information contained herewith, including but not limited to the general property description, price and the address, is provided to Boffo Real Estate by third parties. We have obtained this information from sources we believe to be reliable; however, we have not verified and do not guarantee its accuracy. The information contained should not be relied upon and you should make your own enquiries and seek advice in respect of this property or any property on this website.
The Vendor's Statement (Form 1), the Auction Contract and the Conditions of Sale will be available for perusal by members of the public - (A) at our office located at 78-80 North East Road, Walkerville for at least 3 consecutive business days immediately preceding the auction; and (B) at the place at which the auction is to be conducted for at least 30 minutes immediately before the auction commences.
RLA 313174
