Cute as a Button, Double Storey Abode on Hartley Grove!
Offering a corner allotment located directly across from the renowned Hartley Grove Reserve, this double storey abode is sure to tick all the boxes. Extending low maintenance living and convenience with a spacious and versatile layout complete with three well equipped bedrooms including the master with ensuite and walk in robe.
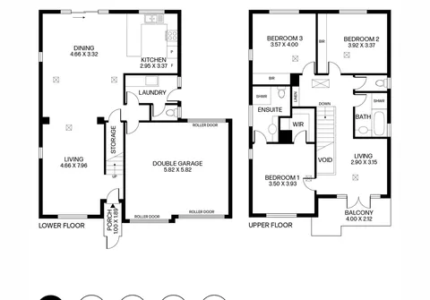
With an abundance of natural light throughout, together with high ceilings, and charming timber floorboards and offering a large and open plan living, kitchen and dining across the lower level of the home, this is an opportunity for buyers to move straight in and start taking advantage of everything the area has to offer.
Complete with the conveniences of a paved and low maintenance outdoor space with easy care garden beds ready and waiting for the avid green thumb to add their own flora and fauna. Including a double lock up garage and extended driveway for additional off-street parking.
Upper level:
- Airy master bedroom with feature arched floor to ceiling window, walk-in robe and generous ensuite
- Good sized bedrooms 2 and 3, both with built-in robes
- Sparkling main bathroom with separate bath and shower + separate toilet for added convenience
- Separate study or sitting room with French doors opening to balcony
- Private balcony overlooking the reserve providing the perfect spot for your morning coffee
- Ducted reverse cycle air conditioning
Lower level:
- Stylish kitchen with stainless steel dishwasher and oven, gas cooktop, large pantry, abundance of cupboard and bench space
- Spacious open-plan kitchen, living and dining room with glass sliding doors leading through to the alfresco
- Separate laundry with built-in joinery, linen storage and external access
- Convenient additional toilet
- Ducted reverse cycle air-conditioning
- LED downlights throughout
- Under-stair storage
- Low-maintenance paved outdoor entertaining area with easy-care garden beds surrounded
- Double garage with roller doors, internal access and roller door providing access to the rear of the property
- Beautifully established front garden with paved driveway for additional parking
- Prominent corner block offering fantastic street appeal
Approximate Fees:
- Water supply: $70.80 per quarter
- Sewer: $102.46 per quarter
- Community insurance: $74 per annum
Ideally located in the ever-demanding suburb of Windsor Gardens and overlooking the Hartley Grove Reserve. With local parks including Linear Park, shops, public transport and schools all within a short walk or driving distance. Only a short distance from the Paradise Interchange and the O-Bahn will take you into the city in no time. All of this plus a short drive to the Adelaide CBD and Tea Tree Plaza.
For further information please contact Jimmy Wu on 0417 874 084, Carlos Carosi on 0428 909 228 or 8269 7711 (office).
All information provided has been obtained from sources we believe to be accurate, however, we cannot provide any guarantee and we accept no liability for any errors or omissions (including but not limited to a property's land size, floor plans and size, building age and condition). Interested parties should make their own inquiries and obtain their own legal advice.
The Vendor's Statement (Form 1), the Auction Contract and the Conditions of Sale will be available for perusal by members of the public - (A) at our office located at 78-80 North East Road, Walkerville for at least 3 consecutive business days immediately preceding the auction; and (B) at the place at which the auction is to be conducted for at least 30 minutes immediately before the auction commences.
RLA 313174
