A Charming Property Bursting with Potential
This beautiful solid home is ready for you to simply move in and make it your own. An abundance of vintage charm is on show with the potential for modern updates that will really transform this abode.
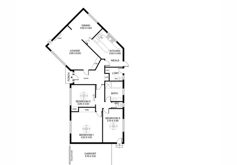
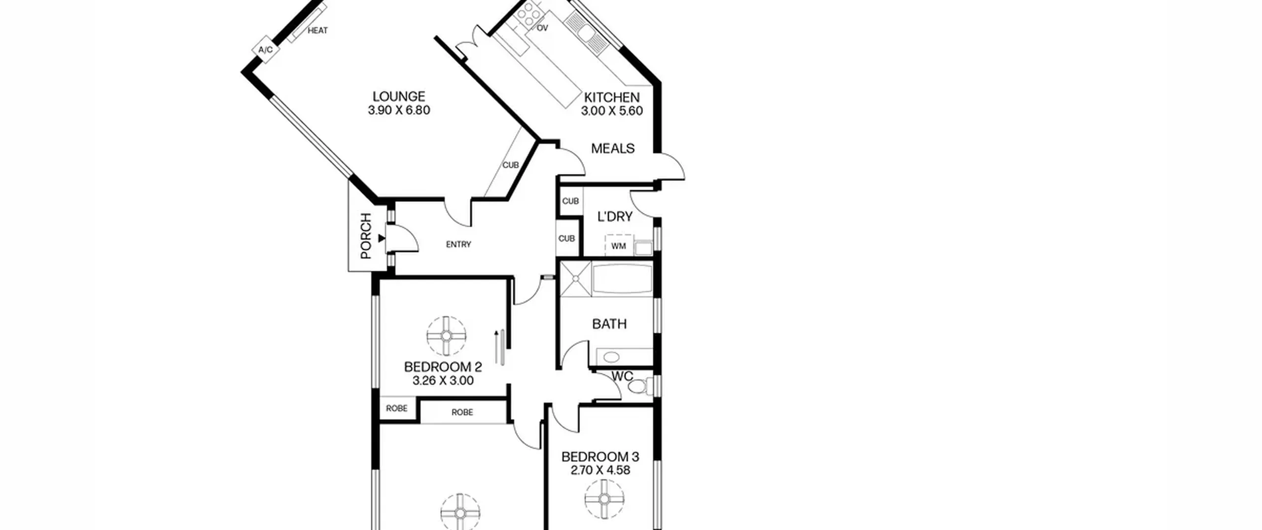
The layout offers three bedrooms and one bathroom, plus plenty of living space and all the flexibility and comfort a modern family needs. The eat-in kitchen is equipped with plenty of storage and there is also an additional dining room and lounge where you can indulge in quality downtime.
Outside, a large backyard is ready for pets and kids to run freely and also offers shed storage and an aviary. Whether you choose to renovate (subject to planning consents) , or enjoy as-is, this is a property you can’t go past!
- Built in approximately 1962
- Generous 688sqm (approximate) of rare earth
- Comprising of 3 good sized bedrooms, all with ceiling fans and bedrooms 1 and 2 with built-in robes
- Spacious formal lounge room with air conditioner and beautiful fire place
- Light filled dining room adjoining the lounge
- Original eat-in kitchen with standalone oven and cooktop and ample bench and cupboard space
- Neat and tidy bathroom with separate bath and shower
- Separate toilet
- Practical laundry with linen storage and external access
- Single carport with roller door and large drive way for additional off-street parking
- Low-maintenance front and rear gardens
- 2x garden sheds and aviary to backyard
Ideally located in the ever-demanding suburb of Windsor Gardens. With local, shops, public transport, schools and parks including Linear Park all within a short walk or driving distance. An easy 10 minute (approximate) walk to the Paradise interchange and the O-Bahn will take you into the city in no time. All of this plus a short drive to the Adelaide CBD and Tea Tree Plaza
For further information please contact Jimmy Wu on 0417 874 084, Carlos Carosi on 0428 909 228 or 8269 7711 (office).
All information provided has been obtained from sources we believe to be accurate, however, we cannot provide any guarantee and we accept no liability for any errors or omissions (including but not limited to a property's land size, floor plans and size, building age and condition). Interested parties should make their own inquiries and obtain their own legal advice.
The Vendor's Statement (Form 1), the Auction Contract and the Conditions of Sale will be available for perusal by members of the public - (A) at our office located at 78-80 North East Road, Walkerville for at least 3 consecutive business days immediately preceding the auction; and (B) at the place at which the auction is to be conducted for at least 30 minutes immediately before the auction commences.
RLA 313174
