Beautifully Presented Home Bursting with Character on Large Allotment!
This beautifully kept home is incredibly secure, set behind a well–manicured hedged with a gated driveway for your privacy. As soon as you set foot on the property you are welcome by the beautifully designed front gardens with an undercover pergola where you can sit and enjoy your morning coffee.
Boasting a generous 760sqm (approximate) allotment and a 17m (approximate) frontage, the possibilities are truly endless. Ideal for the young family or savvy investor and located a stone’s throw from the beautiful walking trails of Linear Park, a short distance from public transport including Klemzig Interchange, quality schools and multiple sporting facilities.
Situated in the highly sought–after suburb of Windsor Gardens, situated moments from the CBD. This well-presented home provides a move in and enjoy lifestyle!
Features that make this home special:
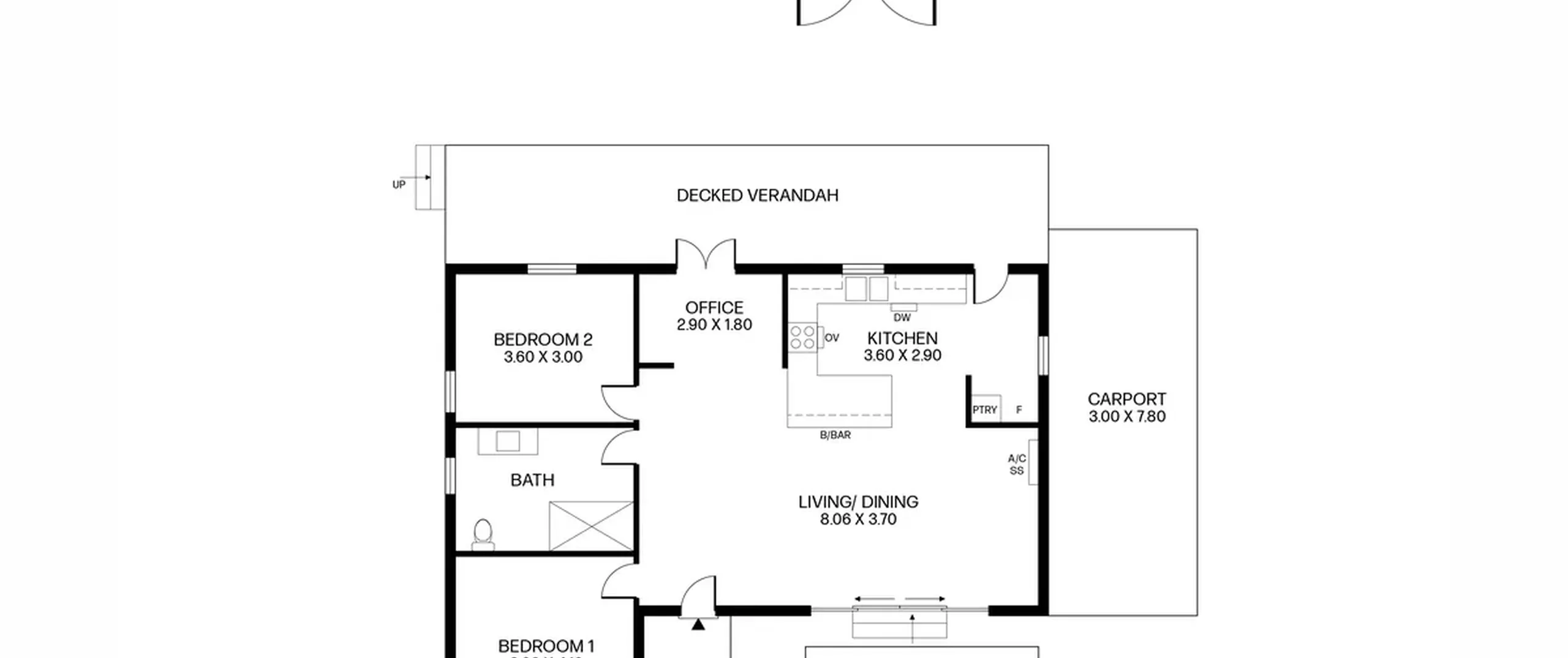
- Currently used as a 2 bedroom home with a flexible floor plan
- Generous size bedroom 1 with direct access to front pergola; in original condition and ready to be improved
- Good size bedroom 2, tastefully renovated
- Light filled open plan living, dining and kitchen with split system air conditioner for year-round comfort
- Stylish and unique kitchen with stainless steel appliances, ample cupboards, dishwasher, induction cooktop, retro feature splash back and breakfast bar; updated in approximately 2012
- Large modern bathroom with floor to ceiling tiles; renovated in approximately 2012
- Office area with French doors opening to decked verandah
- LED down lights throughout
- Decked verandah to the rear of the property, perfect to enjoy a glass of wine on while taking in the serene views of the beautifully landscaped rear garden
- Well–manicured lawns for kids and furry friends to run free
- Spacious adjoining garage/shed and workshop for additional storage for the DIY enthusiast to enjoy
- Single carport with direct access to the backyard
- Long gated driveway for additional off-street parking
Additional features:
- 3.5kW solar system on the roof
- New plumbing to the property, installed around 2012 as per owners
- Double glazed windows and French doors
- Asbestos removal completed in 2011 by SA Quality Home Improvements as per owners
- Re-roofed in approximately 2011
Ideally located in the ever-demanding suburb of Windsor Gardens. With local parks, shops, public transport and schools all within a short walk or driving distance. An easy 5 minute (approximate) drive to the Klemzig interchange and the O-Bahn will take you into the city in no time. All of this plus a short drive to the Adelaide CBD and Tea Tree Plaza.
Please Note: The Vendor advises that the property is sold on a 'as is' basis and in regards to the solar hot water system, this is not in working condition and will not be fixed or replaced prior to settlement. There is however an electrical hot water system at the property.
For further information please contact Jimmy Wu on 0417 874 084, Carlos Carosi on 0428 909 228 or 8269 7711 (office).
All information provided has been obtained from sources we believe to be accurate, however, we cannot provide any guarantee and we accept no liability for any errors or omissions (including but not limited to a property's land size, floor plans and size, building age and condition). Interested parties should make their own inquiries and obtain their own legal advice.
The Vendor's Statement (Form 1), the Auction Contract and the Conditions of Sale will be available for perusal by members of the public - (A) at our office located at 78-80 North East Road, Walkerville for at least 3 consecutive business days immediately preceding the auction; and (B) at the place at which the auction is to be conducted for at least 30 minutes immediately before the auction commences.
RLA 313174
