Your Search Stops Here!
Indulge in the sophistication and style of this refined Windsor Gardens home. The layout is open-plan and recently renovated, you can spend your weekends hosting guests in the impressive alfresco area whilst kids and pets run free in the low maintenance backyard.
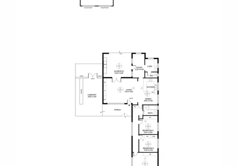
Inside you are greeted by a light filled living, dining and kitchen area complete with downlights and ceiling fans for year round comfort. The layout offers three bedrooms and one central bathroom to the front of the property with the list of features continuing with a separate laundry and powder room and a separate study with direct access to the outdoor area.
Set on a generous 706sqm (approximate) block with a 16.46m (approximate) frontage, the floorplan is complete with a single carport, large gated driveway and garage storage to the back of the property. This home’s central location places you only moments from Linear Park and all the shops and services you could need. Low maintenance and move in ready, there is nothing left for you to do but enjoy!
Features that make this home special:
- Three great sized bedrooms all with built-in robes and ceiling fans
- Spacious open plan living, dining and kitchen complete with ceiling fans and French doors opening to the alfresco
- Stylish kitchen with gas cooking, stainless steel appliances including dishwasher and rangehood and complete with breakfast bar
- Study with direct access to alfresco
- Modern main bathroom with separate bath and shower
- Separate laundry with separate toilet for convenience
- Ducted gas heating and evaporative cooling
- Semi-enclosed alfresco area with built-in BBQ and ceiling fan, perfect for entertaining friends and family
- Low maintenance lawns and garden to the front and rear of the home
- Large garage with roller doors for easy access
- Single carport with large gated driveway and direct access to the rear of the property
Ideally located in the ever-demanding suburb of Windsor Gardens. With local parks including Linear Park, shops, public transport and schools all within a short walk or driving distance. An easy 10 minute (approximate) walk to the Paradise Interchange and the O-Bahn will take you into the city in no time. All of this plus a short drive to the Adelaide CBD and Tea Tree Plaza.
Please Note: The Vendor advises that the property is sold on an ‘as is’ basis and in regards to the fireplace in the living room, this may or may not be in working order and will not be replaced or fixed prior to settlement.
The Vendor advises that gas and electricity connections have been requested and will resume in approximately 4-6 weeks.
For further information please contact Jimmy Wu on 0417 874 084, Carlos Carosi on 0428 909 228 or 8269 7711 (office).
All information provided has been obtained from sources we believe to be accurate, however, we cannot provide any guarantee and we accept no liability for any errors or omissions (including but not limited to a property's land size, floor plans and size, building age and condition). Interested parties should make their own inquiries and obtain their own legal advice.
The Vendor's Statement (Form 1), the Auction Contract and the Conditions of Sale will be available for perusal by members of the public - (A) at our office located at 78-80 North East Road, Walkerville for at least 3 consecutive business days immediately preceding the auction; and (B) at the place at which the auction is to be conducted for at least 30 minutes immediately before the auction commences.
RLA 200591
