Impressive!
Located in the high growth area of Windsor Gardens, this home offers an ideal lifestyle with many great amenities close by, and is sure to impress families and first home buyers looking to get into the market as well as investors looking to add to their current portfolio. Situated on a 398sqm (approximate) allotment with quality fixtures and fittings throughout, this home truly offers a move-in with nothing to do opportunity.
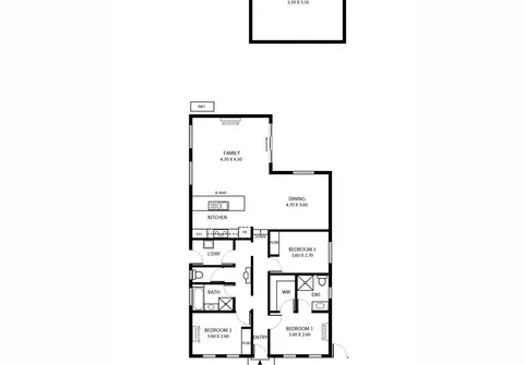
Features that make this home special:
- Master bedroom with split system air conditioner, walk-in robe and ensuite
- Good sized bedroom 2 with built-in robe and split system air conditioner
- Good sized bedroom 3 with built-in robe
- Large family area with split system air conditioner
- Modern kitchen with gas cooktop, stainless steel appliances and breakfast bar
- Dining area adjacent kitchen
- Main bathroom with separate bath and shower + separate toilet
- Separate laundry
- Secure rear yard
- Paved patio, ideal for outdoor entertaining
- Double garage with automatic door
Located nearby to Gilles Plains Shopping Centre and only a short drive to all the entertainment and shopping that Westfield Tea Tree Plaza has to offer. Parks, public transport including Paradise Interchange and the O-Bahn, quality schools and multiple sporting facilities are all nearby. Located less than 10kms (approximately) to the CBD, vibrant North Adelaide and everything the Adelaide Oval precinct has to offer.
For further information please contact Jimmy Wu on 0417 874 084 or 8269 7711 (office).
RLA 200591
