Endless Opportunity Awaits on this Large Block
Prime opportunity to secure a fantastic family home situated on a large 800sqm (approximate) block with a wide 19.81m (approximate) frontage and 40m (approximate) depth. Renovate, rent out, redevelop and renew: the choice is yours (all subject to council consent)! Astute buyers will surely be impressed with this well maintained property and the potential to add value.
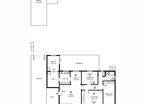
Features that make this home special:
- Large master bedroom with built-in robe and ceiling fan
- Good sized bedroom 2 with built-in robe
- Bedroom 3 with ceiling fan
- Large lounge room
- Tidy kitchen with gas cooktop and ample cupboard space
- Dining area adjacent kitchen
- Spacious rumpus room
- Clean bathroom with separate bath and shower + separate toilet
- Separate spacious laundry
- Decked verandah for outdoor entertaining
- Secure rear yard
- Large carport with drive through access to rear
- Currently rented to fantastic tenants for $340 per week until May 2019
Parks, public transport including Paradise Interchange, quality schools and multiple sporting facilities are all nearby. Located nearby to Gilles Plains Shopping Centre and only a short drive to all the entertainment and shopping that Westfield Tea Tree Plaza has to offer. All this and located only 10kms (approximately) to the CBD, vibrant North Adelaide and everything the Adelaide Oval precinct has to offer.
For further information please contact Jimmy Wu on 0417 874 084 or 8269 7711 (office).
RLA 200591
