Summer Ready!
This fabulous family home is the one you have been waiting for! Immaculately presented and offering 3 bedrooms plus a fantastic outdoor entertaining area that overlooks the sparkling swimming pool, this home has plenty of room for all the family to live, relax and play. Situated on a low maintenance allotment, this home is sure to impress!
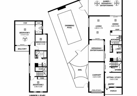
Features that make this home special:
- Master bedroom with built-in robe, ceiling fan and ensuite
- Spacious bedrooms 2 and 3, bedroom 2 with built-in robe (built-in robe to be installed in bedroom 3)
- Light filled living and dining room
- Modern kitchen with gas cooktop, dishwasher and ample bench and cupboard space
- Sitting room/study room
- Stylish main bathroom with separate bath and shower + separate toilet
- Additional w/c downstairs for your convenience
- Separate laundry
- Ducted reverse cycle air conditioning throughout
- 3.25kw solar panel system with 13 panels
- Expansive outdoor entertaining area with heater and ceiling fans
- Verandah area
- Sparkling in ground swimming pool
- Patio with shade sail
- Low maintenance front and rear yard
- Single carport with panel lift door
Ideally located within the ever demanding suburb of Windsor Gardens, with local parks, schools and Gilles Plains Shopping Centre all within walking distance. Furthermore, a comfortable 2 minute walk will take you right down to the exclusive Linear Park. All of this and only a short drive to all the shopping and entertainment that Tea Tree Plaza has to offer.
Seldom do we find such a beautiful property representing excellent value for money.
For further information please contact Jimmy Wu on 0417 874 084 or 8269 7711 (office).
RLA 200591
