Delightful Family Home in Outstanding Location
This 2005 built, well maintained family home is set on a 353sqm (approximate) block in a prime location and is surrounded by other quality homes. Within close proximity to all amenities, this home offers a brilliant lifestyle and will appeal to couples, families and the savvy investor looking to add to their portfolio.
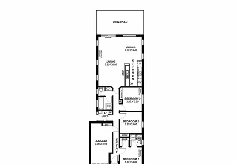
Features that make this home special:
- Master bedroom with split system air-conditioner, walk-in robe and ensuite
- Good sized bedroom 2 with built-in robe
- Generous sized bedroom 3 with built-in robe and split system air-conditioner
- Large open plan living area with split system air-conditioner
- Modern kitchen with gas cooktop and breakfast bar
- Dining area adjacent kitchen
- Clean and tidy main bathroom with separate bath and shower + toilet
- Separate laundry
- Verandah, ideal for outdoor entertaining
- Fully fenced, secure rear yard with garden shed
- Single garage with automatic roller door and direct internal entry
- Currently rented to great tenants for $375 per week until May 2018
Within easy walking distance to the recently upgraded Gilles Plains Shopping Centre and only a short drive to all the entertainment and shopping that Westfield Tea Tree Plaza has to offer. Parks, public transport including Paradise Interchange, quality schools and multiple sporting facilities are all nearby. Located 10kms (approximately) from vibrant North Adelaide, the CBD and everything the Adelaide Oval precinct has to offer.
For further information please contact Jimmy Wu on 0417 874 084 or 8269 7711 (office).
RLA 200591
The Vendor's Statement (Form 1), the Auction Contract and the Conditions of Sale will be available for perusal by members of the public -
(A) at our office located at 434 Montague Road, Modbury North for at least 3 consecutive business days immediately preceding the auction; and
(B) at the place at which the auction is to be conducted for at least 30 minutes immediately before the auction commences.
