Great Opportunity!
On offer is this fantastic opportunity to secure this large corner allotment of 761sqm (approximate) in this extremely popular and in demand location directly adjacent Linear Park with fantastic subdivision potential (subject to council consent). Of exciting interest is the potential to use the site to build your dream home (subject to council consent) with a large frontage on both River Valley Drive and Brookvale Avenue.
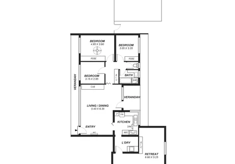
Features of the home:
- 3 spacious bedrooms
- Bedrooms 1 and 2 with built-in robes
- Light filled living and dining room with cupboards
- Parents retreat with built-in cupboards
- Kitchen with dishwasher
- Main bathroom with separate bath and shower + separate toilet
- Verandah
- Large shed
The property is set adjacent Linear Park and is surrounded by other quality homes and within easy walking distance to parks, Paradise Interchange, quality schools and multiple sporting facilities. Only a short drive to Gilles Plains Shopping Centre and Newton Shopping Centre. Located 9.4kms (approximately) from vibrant North Adelaide, the CBD and everything the Adelaide Oval precinct has to offer.
Do not miss out on this opportunity!!
For further information please contact Jimmy Wu on 0417 874 084 or 8269 7711 (office).
RLA 265613
The Vendor's Statement (Form 1), the Auction Contract and the Conditions of Sale will be available for perusal by members of the public -
(A) at our office located at 434 Montague Road, Modbury North for at least 3 consecutive business days immediately preceding the auction; and
(B) at the place at which the auction is to be conducted for at least 30 minutes immediately before the auction commences.
