Modern Luxury Meets Tranquil Charm in Valley View: Your Dream Home Awaits!
Discover the epitome of modern elegance in this charming two-level home nestled in the heart of Valley View. Meticulously refurbished, it boasts contemporary finishes that redefine comfort and style. Step inside to find a tasteful blend of on-trend flooring, LED downlights, renovated bathroom and a fresh coat of paint that sets the stage for a truly inviting living experience.
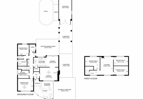
With a total of five bedrooms spread across both levels, this home offers ample space for the whole family. Additionally, there's a versatile study that can easily double as a sixth bedroom, providing flexibility to suit your needs.
Upon your arrival, you'll be greeted by a tranquil front garden adorned with lush greenery and a serene pond. It's a welcoming sight that sets the tone for the tranquility you'll find inside.
This home doesn't just offer one living area; it provides multiple options to cater to your lifestyle. A charming family room with a gas heater awaits you upon entry, creating a cosy atmosphere perfect for relaxation. The inviting kitchen and meals area provide an ideal space for family gatherings and culinary adventures. For those seeking solitude, escape with a good book to the upstairs lounge room, a haven of peace and quiet.
Step outside, and you'll be captivated by the expansive entertaining space, where you can host summer BBQs and create cherished memories with loved ones. The sparkling swimming pool invites you to take a refreshing dip, making it an oasis of fun and relaxation during the warmer months.
Parking is a breeze with secure space for up to five cars, ensuring convenience and peace of mind. There's also additional space in the driveway for off-street parking, making sure you have room for all your vehicles.
Seize the chance to make this Valley View treasure your very own, where contemporary convenience seamlessly blends with enduring allure in a location brimming with numerous amenities, all while being less than a minute away from the Valley View golf course.
Lower level comprising:
- Bedroom 1 with ceiling fan and built-in robe
- Bedroom 2 with built-in robe
- Study with option to utilise as a 6th bedroom
- Charming lounge room upon entry with gas heater mantel price, ceiling fan, LED downlights and sun-lit through the large window
- Inviting meals area adjacent kitchen
- Modern kitchen complete with ample storage space, dishwasher and pantry overlooking the rear yard
- Contemporary main bathroom with floor to ceiling tiles
- Additional toilet for added convenience
- Separate laundry
- Linen storage
- Paved outdoor entertaining space with ample room to host memorable occasions
- Double carport with drive through access to garage and additional undercover parking
- Sparkling swimming pool with shaded pergola
Upper level comprising:
- Bedrooms 3, 4 and 5 all complete with built-in robes
- Light-filled lounge room
- Ducted air-conditioning
Perfectly positioned in the sought after suburb of Valley View and close to a variety of schools including Valley View Secondary School, Para Vista Primary School and St Paul’s College. Nearby Modbury Hospital, TAFE SA Gilles Plains and the O'Bahn for easy access to Adelaide CBD. Public transport options are just a short walk away. Only a minute's drive to all the shopping and entertainment that Tea Tree Plaza has to offer. All this and less than 12kms (approximate) to the Adelaide CBD.
All information contained herewith, including but not limited to the general property description, price and the address, is provided to Boffo Real Estate by third parties. We have obtained this information from sources we believe to be reliable; however, we have not verified and do not guarantee its accuracy. The information contained should not be relied upon and you should make your own enquiries and seek advice in respect of this property or any property on this website.
The Vendor's Statement (Form 1), the Auction Contract and the Conditions of Sale will be available for perusal by members of the public - (A) at our office located at 78-80 North East Road, Walkerville for at least 3 consecutive business days immediately preceding the auction; and (B) at the place at which the auction is to be conducted for at least 30 minutes immediately before the auction commences.
RLA 313174
