Not All Treasure is Buried!
Immaculately looked after since 1972 by the one owner, conveniently located in the ever emerging suburb of Valley View and situated on a massive 970sqm (approximate) block. Offering the lucky new owner a multitude of options including: live in and enjoy, renovate and add your own personal touches, rent out and reap the rewards or redevelop (subject to council consent).
Features that make this home special:
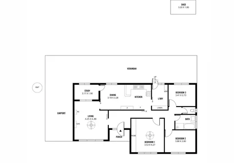
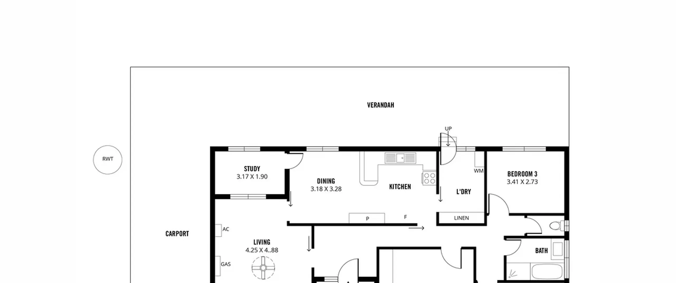
- Large master bedroom with ceiling fan and built-in robe
- Good sized bedrooms 2 and 3, bedroom 3 with wardrobe
- Light filled lounge with ceiling fan, gas heater and air conditioning
- Functional kitchen with ample bench and cupboard space
- Dining area adjacent kitchen
- Main bathroom with separate bath and shower + separate toilet
- Study
- Separate laundry with linen cupboard
- Expansive verandah, ideal for outdoor entertaining
- Fully fenced rear yard with rainwater tank and two garden sheds
- Carport to fit up to 3 cars with access to rear yard
Perfectly positioned in the sought after suburb of Valley View and close to a variety of schools, Modbury Hospital, Tafe SA Gilles Plains and the O'Bahn for easy access to Adelaide CBD. Public transport options just a short walk away. Only minutes' drive to all the shopping and entertainment that Tea Tree Plaza has to offer. All this and less than 14kms (approximate) to the Adelaide CBD.
For further information please contact Robert Lonie on 0419 129 009 or Scott McNeela on 0455 800 848 or 8269 7711 (office).
RLA 200591
