The Potential To Be Something Amazing
Conveniently located in the ever emerging suburb of Valley View, situated on a 688sqm (approximate) corner block, with a wide 19.86m (approximate) frontage to Rutherglen Avenue and a 34.26m (approximate) frontage to Ronald Street. This quality built, Ian Wood home offers the new owner a multitude of options including the potential to use the site to build your dream home, explore the subdivision potential (subject to council consent) or renovate the existing home and add value - the choice is yours!
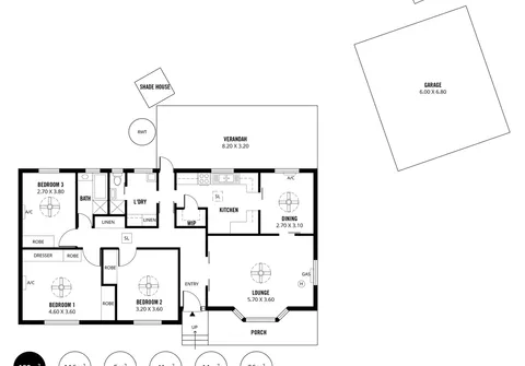
Features that make this home special:
- Large master bedroom with ceiling fan, built-in robe and dresser and a split system air conditioner
- Good sized bedrooms 2 and 3 with built in robes and ceiling fan, bedroom 3 with a split system air conditioner
- Light filled lounge with bay window, ceiling fan and oil heater
- Large, kitchen with walk-in pantry, dishwasher and ample bench and cupboard space
- Formal dining room adjacent kitchen with ceiling fan and split system air conditioning
- Neat and tidy bathroom with separate bath and shower
- Separate toilet with additional shower
- Separate laundry with linen press
- Large verandah, ideal for outdoor entertaining
- Small rear garden
- Additional enclosed courtyard
- Separate shade house
- Large double garage with power
- Fully fenced rear yard with rainwater tank and irrigation system
Perfectly positioned in the sought after suburb of Valley View and close to a variety of schools, Modbury Hospital, Tafe SA Gilles Plains and the O'Bahn for easy access to Adelaide CBD. Public transport options just a short walk away. Only minutes' drive to all the shopping and entertainment that Tea Tree Plaza has to offer. All this and less than 13kms (approximate) to the Adelaide CBD.
For further information please contact Robert Lonie on 0419 129 009 or Scott McNeela on 0455 800 848 or 8269 7711 (office).
RLA 200591
