Experience Easy, Modern Comfort
Indulge in a low-maintenance lifestyle of comfort and leisure with this modern and stylish abode, built in 2015. Conveniently positioned across from a beautiful reserve featuring a lake and just a short walk to St Clair Playground and Oval for the whole family to enjoy.
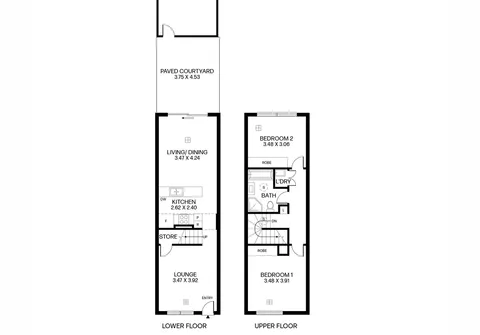
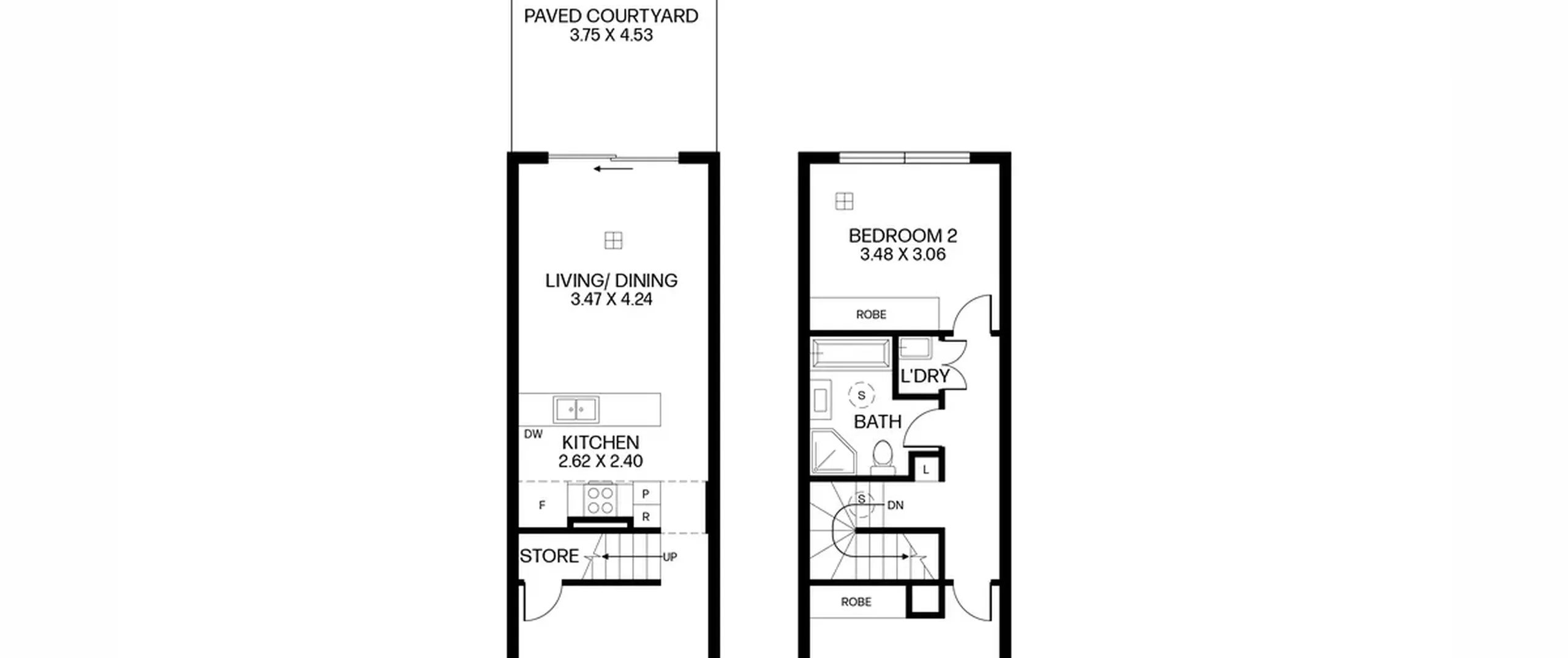
Welcome to a light-filled, versatile lounge that effortlessly flows into a spacious open-plan living, dining and kitchen area - perfect for both relaxing and entertaining. Upstairs, two generously sized bedrooms are thoughtfully designed around a central bathroom for ultimate convenience. Enjoy the added benefit of a secure garage at the rear, providing direct, hassle-free access into your new home.
Offering the ideal lock-up-and-leave lifestyle, this home is perfectly suited for young professionals, first-time buyers or investors seeking a solid opportunity in a peaceful, family-friendly neighborhood.
Features that make this home special:
Downstairs:
- Flexible lounge area upon entry
- Open-plan kitchen, living and dining space with seamless access to the outdoors
- Contemporary white kitchen featuring a gas cooktop, dishwasher, dual stainless steel sinks and ample storage
- Convenient under-stair storage
- Sunlit, paved courtyard perfect for relaxing or entertaining
- Secure garage with panel lift door
- Ducted air conditioning throughout
Upstairs:
- Spacious bedrooms one and two, both featuring built-in robes
- Main bathroom includes a shower, bath, toilet and vanity
- Convenient European-style laundry
- Ducted air conditioning throughout
- Currently tenanted until 9/12/2025 at $575 per week
Superbly positioned just 11.6km (approximately) from the Adelaide CBD and only 7km (approximately) from the beach, this home offers the perfect blend of convenience and lifestyle. Enjoy easy access to the shopping, dining and entertainment options at Westfield West Lakes, just a short drive away. Nestled within the vibrant St Clair community, you'll be surrounded by 22 hectares of scenic waterways and parks, as well as a village square featuring shops, cafés and a medical centre. Public transport is just a short walk away, with nearby bus and train services providing direct links to the CBD, Adelaide Oval and the city’s top universities.
All information contained herewith, including but not limited to the general property description, price and the address, is provided to Boffo Real Estate by third parties. We have obtained this information from sources we believe to be reliable; however, we have not verified and do not guarantee its accuracy. The information contained herewith should not be relied upon and you should make your own enquiries and seek advice in respect of this property or any property on this website.
The Vendor's Statement (Form 1), the Auction Contract and the Conditions of Sale will be available for perusal by members of the public - (A) at our office located at 78-80 North East Road, Walkerville for at least 3 consecutive business days immediately preceding the auction; and (B) at the place at which the auction is to be conducted for at least 30 minutes immediately before the auction commences.
Looking to purchase this property as an investment? Speak to our Property Management team to see how we can assist.
RLA 313174
