**SOLD PRIOR TO AUCTION**
On offer is this delightful, well maintained 3 bedroom family home situated on a generous 663sqm block (approximately). Offering the perfect lifestyle with many great amenities close by and the tranquil setting of the reserve and creek at the rear. This home is sure to impress families and first home buyers looking to get into the market and investors looking to add to their current portfolio.
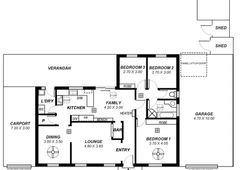
Features that make this home special:
- Master bedroom with built in robe and ceiling fan
- Spacious bedrooms 2 and 3, bedroom 3 with built-in robe
- Light filled lounge with raked ceilings and built-in bar
- Formal dining room with ceiling fan
- Modern kitchen with dishwasher and ample cupboard space
- Updated bathroom with separate bath and shower + separate toilet
- Separate laundry
- Ducted evaporative air conditioning throughout
- Gas space heater
- 2.5kw solar system
- Solar hot water service
- Security system
- Paved undercover outdoor entertaining area
- Paved courtyard area
- Garden shed
- Manicured gardens
- Fully fenced and secure rear yard
- Single carport with automatic roller door
- Double length garage with roller door, rear panel lift door and work bench
Located in the quiet suburb of St Agnes with local schools, sporting facilities and public transport options all nearby. Only minutes' drive to some of the best shopping that Tea Tree Plaza and the newly developed St Agnes Coles Shopping Centre has to offer. All this and only a short 14kms (approximate) drive to the city.
For further information please contact Robert Lonie on 0419 129 009 or 8269 7711 (office).
RLA 265613
The Vendor's Statement (Form 1), the Auction Contract and the Conditions of Sale will be available for perusal by members of the public -
(A) at the office of the agent for at least 3 consecutive business days immediately preceding the auction; and
(B) at the place at which the auction is to be conducted for at least 30 minutes immediately before the auction commences.
