Seaside Living
Unique, stylish, spacious unit with private garden and walking distance to beach, train, bus and café’s – ideal for first home-buyers, couples or investors!
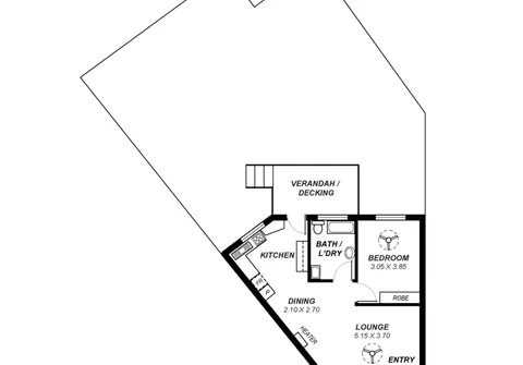
Features that make this home special:
- Roomy and spacious with polished floor boards, ceiling fans and gas heating
- The spacious light-filled living area includes an intimate dining space and opens to a roomy kitchen
- Sparkling kitchen with gas stove, filtered water, natural timber benchtops and ample cupboard space
- Roomy master bedroom, with ceiling fan and floor-to-ceiling built-in wardrobe
- Large, immaculate combined laundry and bathroom with bath
- Expansive, all-weather pergola with timber decking overlooks a lovely secluded garden and has views to a tree-filled gully
- Single carport and garden shed
Ideally located close to the SA Aquatic & Leisure Centre and Westfield Marion Shopping Centre. Only a short drive to Flinders University and Flinders Medical Centre, and easy access to either the beach or the city with public transport.
