Ready to Add Your Own Style
Set on a large 778sqm (approximate) allotment with a 19.2 (approximate) frontage in the high growth area of Salisbury Downs, this solid 1974 built home offers the new owner a multitude of options including: renovate and add your own personal touches, rent out and reap the rewards or redevelop (subject to council consent). Astute buyers will surely be impressed with the central location to parks and shopping centres as well as the endless potential to add value to a structurally sound home.
Features that make this home special:
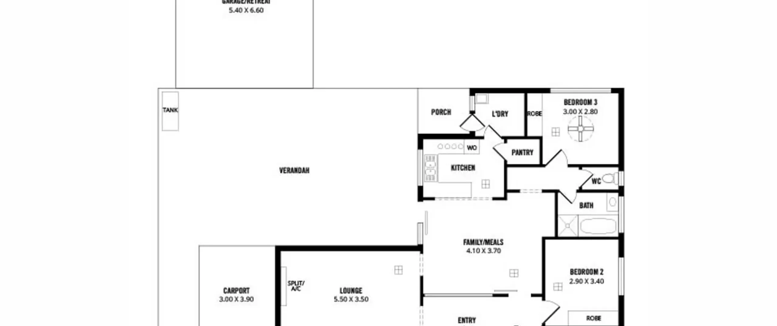
- Large master bedroom
- Good sized bedroom 2 with built-in robe
- Good sized bedroom 3 with ceiling fan and built-in robe
-All bedrooms with polished timber floorboards
- Spacious, light filled formal lounge room with split system air conditioning and polished timber floorboards
- Tidy and practical kitchen with gas cooktop, skylight, walk-in pantry and ample bench space
- Large central family and meals area
- Updated bathroom with separate bath and shower + separate toilet
- Separate laundry with ample storage space
- Ducted evaporative cooling throughout
- Spacious verandah for outdoor entertaining
- Low maintenance, secure rear yard with private high fencing, garden shed and rainwater tank
- Single carport with roller door and drive through access to the garage/rumpus
Located just 50m from Salisbury West Oval and in close proximity to parks, reserves and a variety of schools including Thomas More College, Brahma Lodge Primary School and Salisbury Downs Primary School. Shopping centres including Hollywood Plaza, Parafield Gardens Recreation Centre and Parabanks Shopping Centre both nearby. A short walk to public transport options including the train station a short walk away, with buses also close by for an easy commute to the CBD.
For further information please contact James Rawkins on 0408 081 826 or 8269 7711 (office).
RLA 200591
