Renovated and Ready For You!
This stunning 3 bedroom home has been beautifully renovated throughout with attention to style and functionality. Set on a 596sqm (approximate) corner allotment, and featuring a modern, neutral décor and quality fixtures and fittings throughout, this home is perfectly suited to professionals and young families, as well as investors looking for a quality property to add to their portfolio.
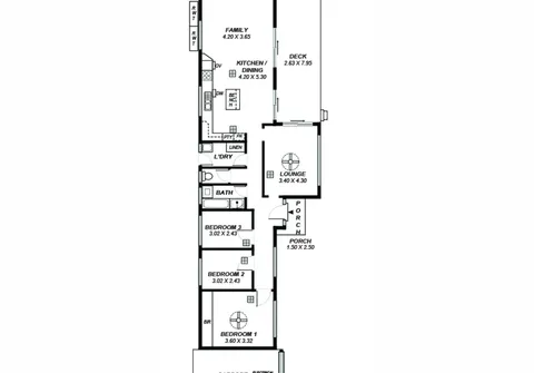
Features that make this home special:
- Master bedroom with built-in robe and ceiling fan
- Spacious bedrooms 2 and 3
- Light filled lounge with ceiling fan
- Modern kitchen with Miele dishwasher, stainless steel appliances including, gas cooktop and microwave and ample bench and cupboard space
- Open plan family and dining room
- Modern bathroom with separate bath and shower + separate toilet
- Rainwater tank plumbed to wet areas
- Separate laundry with linen cupboard
- Ducted evaporative air conditioning throughout
- Undercover outdoor entertaining area with deck
- Rainwater tanks
- 16x solar panels
- Low maintenance yard
- Large shed/workshop
- Single carport with automatic roller door
This premium location is close to excellent private and public schools including: Rostrevor College, Stradbroke Primary School and Norwood Morialta High School Middle Campus. Close to public transport options, shopping precincts and other facilities including parks and walking trails such as Morialta Recreation and Conservation Park. All this and just a short drive to the Adelaide CBD.
For further information please contact Robert Lonie on 0419 129 009 or 8269 7711 (office).
RLA 200591
