Fantastic Family Home
Offering plenty of space for the whole family with multiple living areas and good sized bedrooms, this delightful family home set on a generous 711sqm (approximate) allotment is sure to impress!
Features to make this home special:
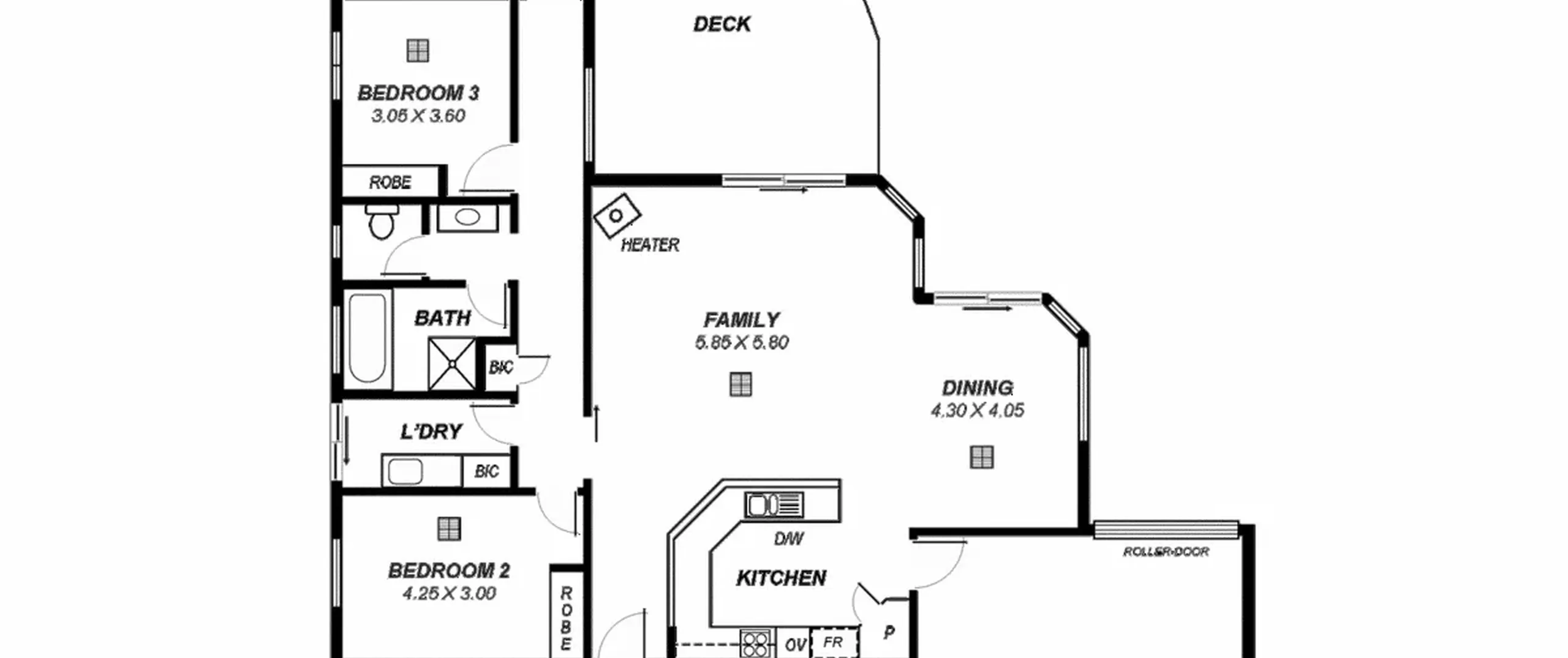
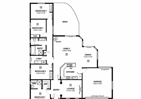
- Master bedroom with walk-in robe and ensuite
- Good sized bedrooms 2, 3 and 4, all with built-in robes
- Spacious formal lounge with heater
- Large, light filled family and dining room with heater
- Modern kitchen with gas cooktop, dishwasher, walk-in pantry and ample bench space
- Main bathroom with separate bath and shower + separate toilet
- Separate laundry with built-in cupboards
- Ducted evaporative air conditioning throughout
- Security alarm
- Expansive rear deck
- Established front and rear yard with electronic control irrigation system
- Garden shed
- Double garage with automatic panel lift door, rear access roller door and direct internal access
Ideally located in quiet Ridgehaven with easy access to public transport, access to the CBD via the O'Bahn and in close proximity to the newly renovated St Agnes Shopping Centre. Just minutes away from all the shopping and entertainment that Tea Tree Plaza has to offer. This is the perfect place for your family to call home.
For further information please contact Robert Lonie on 0419 129 009 or 8269 7711 (office).
RLA 200591
The Vendor's Statement (Form 1), the Auction Contract and the Conditions of Sale will be available for perusal by members of the public -
(A) at our office located at 434 Montague Road, Modbury North for at least 3 consecutive business days immediately preceding the auction; and
(B) at the place at which the auction is to be conducted for at least 30 minutes immediately before the auction commences.
