Sensational 5 Bedroom Family Home!
This beautifully presented and well maintained 5 bedroom family home provides ample space for the entire family to live and play, boasting two separate living areas, ample off-street parking with plenty of room for your caravan, boat or trailer, solar electrical system and a spacious rear yard. Set on a generous 710sqm (approximate) block and provides the perfect lifestyle located in close proximity to numerous amenities.
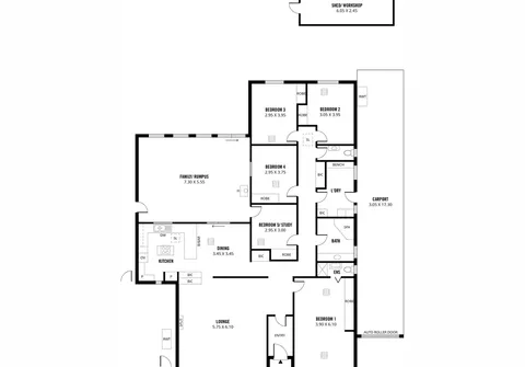
Features that make this home special:
- Large master bedroom built-in robe and ensuite
- Good sized bedrooms 2, 3 and 4, all complete with built-in robes
- Valuable 5th bedroom or study with built-in robe
- Spacious, light filled lounge with split system air conditioner
- Timber kitchen with dishwasher, breakfast bar and ample bench and cupboard space
- Dining area adjacent kitchen
- Large family/rumpus room with combustion heater
- Main bathroom with spa bath and separate toilet
- Separate laundry
- Multiple built-in cupboards for storage
- Ducted evaporative cooling
- Manicured front and rear yard
- Multiple sheds/workshops
- 2 rainwater tanks
- Triple length carport with automatic roller door
- Additional off-street parking
- Solar electrical system with 20 panels
Perfectly positioned only a short stroll to delightful walking paths running alongside the beautiful Eva Reserve, and only minutes away from Fairview Park Shopping Centre, a variety of sought after schools, parks and city via the O-Bahn. In close proximity to all the shopping and entertainment that Tea Tree Plaza has to offer. Inspection is a must!
For further information please contact Jimmy Wu on 0417 874 084 or 8269 7711 (office).
RLA 200591
