A Cosy Slice of City Fringe Life!
This quality, two-bedroom townhouse located in the prestigious suburb of Payneham, is perfect for those looking for a city fringe lifestyle. The lucky new owners of this stylish abode are sure to fall in love with the light-filled, single storey layout that promises complete comfort and easy-care living.
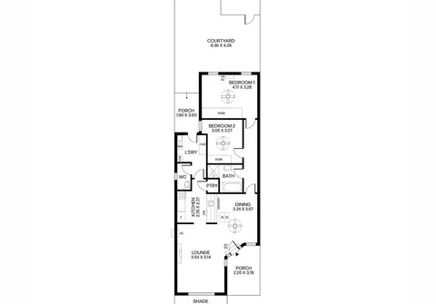
Boasting exposed brick walls and high ceilings to add that extra character within a contemporary style and providing a light and bright open plan lounge and dining area that seamlessly flows to the cosy rear courtyard. Your new home is just a stone’s throw to various shops, schools, gyms and cafés.
First home buyers will appreciate it as an excellent entry level purchase into an in-demand city fringe area. A great opportunity for small families wanting to be within exceptional education. Private and secure while still spacious makes it perfect for people wanting to downsize. Convenient for country people seeking a city fringe pad or for university aged children with excellent transport links nearby. Equally an attractive investment opportunity due to the area’s strong historical rental returns and capital growth.
Features that make this home special:
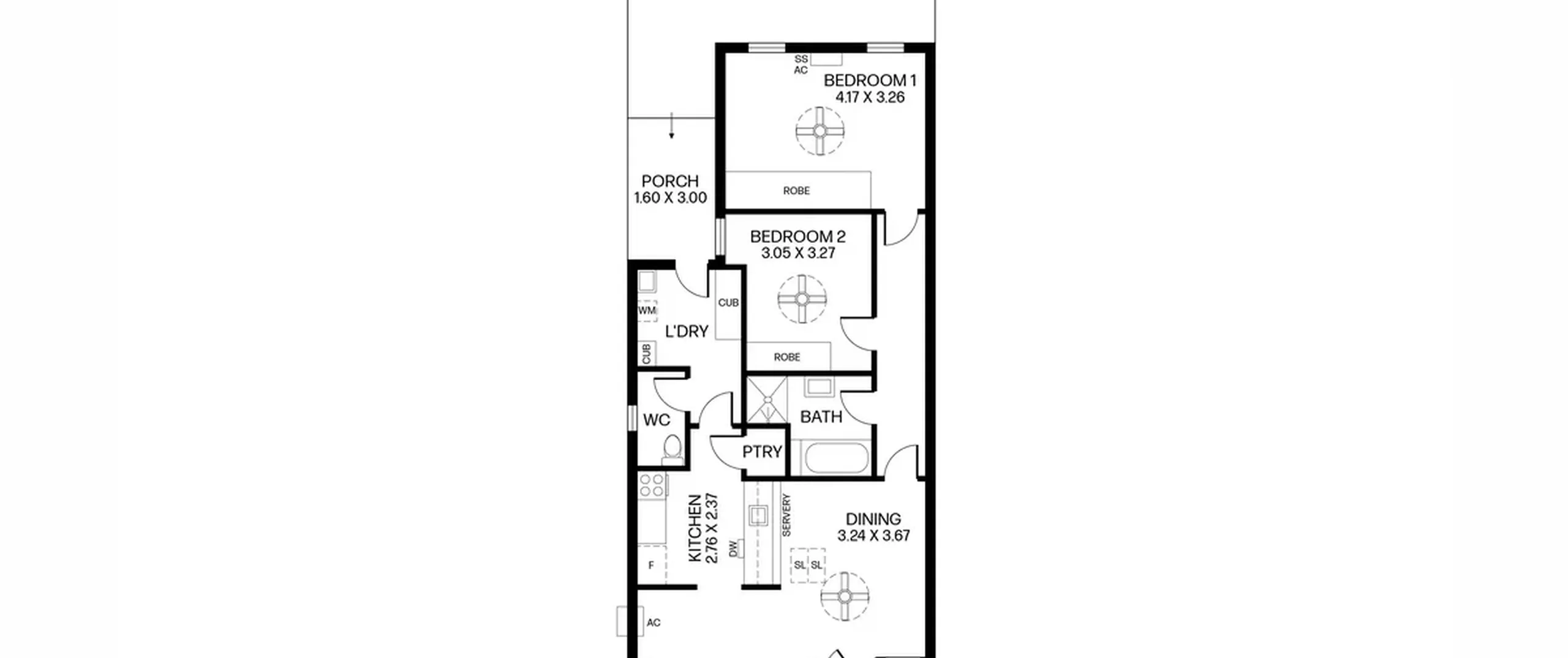
- Generous in size bedroom one & two with built in robes and ceiling fans
- Central bathroom with separate shower, bath and vanity
- Spacious and open, lounge dining and kitchen with walk through access to the laundry
- Pitched roof, light and bright lounge room with feature floor to ceiling windows and exposed brick details
- Modern and tidy kitchen with stainless steel appliances and breakfast bar
- Separate walk-through laundry
- Convenient and separate toilet
- Welcoming and shady courtyard to the front of the home
- Large rear courtyard space and allocated single carport
- Reverse cycle split system to lounge/dining and bedroom one
- NBN
- Currently tenanted to September 2023 at $360.00 p/w
Ideally located a short distance to the cafes, restaurants and shopping The Parade, Norwood and Melbourne Street have to offer. Local shopping centres including Walkerville Shopping Centre and Marden Shopping Centre are both nearby. In close proximity to sporting facilities, public transport options and some of Adelaide's finest schools including Trinity Gardens, St Peter's College, East Adelaide, St Andrew's and St Monica's Parish. All this and just 5kms (approximately) to the CBD, North Adelaide and the Adelaide Oval Riverbank precinct.
All information contained herewith, including but not limited to the general property description, price and the address, is provided to Boffo Real Estate by third parties. We have obtained this information from sources we believe to be reliable; however, we have not verified and do not guarantee its accuracy. The information contained herewith should not be relied upon and you should make your own enquiries and seek advice in respect of this property or any property on this website.
RLA 313174
