Endless Potential in a Quiet Court Location!
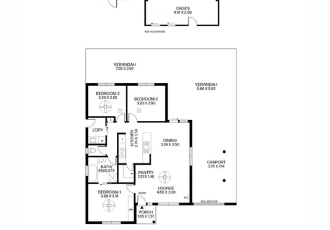
Securely nestled at the end of a peaceful court, this three-bedroom home sits proudly on a generous 626m² (approx.) allotment, offering endless possibilities for the future. Whether you're looking to move in, extend, or add value, this property provides the perfect canvas to bring your vision to life (subject to planning approval).
Designed for easy living, the low-maintenance layout flows seamlessly from the open lounge and dining area to the centrally located kitchen—the heart of the home. From here, step outside to a spacious paved entertaining area, a generous grassed yard, and a unique addition of dog kennel sheds. Inside, split-system air conditioning ensures year-round comfort, while a solar system enhances energy efficiency.
Currently tenanted, this home presents a solid investment opportunity while you plan your next move. Don't miss out on this versatile property with space, potential, and a prime location!
Features that make this home special:
- Three bedrooms, bedroom 1 with built-in robe and bedrooms 1 & 2 both with ceiling fan
- Open plan living, kitchen, dining and lounge room area with split-system air-conditioning
- Kitchen with 900mm gas cooker and oven and walk-in pantry
- Main bathroom with bath, shower and vanity
- Separate toilet for convenience
- Large paved outdoor entertaining area
- Carport with automatic roller door
- 3Kw solar system
- Garden shed
- Dog kennels
- Roller shutters
- Currently tenanted until March 2025 for $450.00 per week
Located in the fast-growing family community of Paralowie, nestled between the vibrant townships of Parafield Gardens and Salisbury, this area offers exceptional convenience. With an abundance of public transport options and local schools nearby, everything you need is within easy reach. Enjoy proximity to local shops, scenic walking trails, and well-regarded schools, including Riverdale Primary School, Temple Christian College, and Paralowie Primary and High Schools. Plus, a variety of cafes and restaurants are right at your doorstep.
All information contained herewith, including but not limited to the general property description, price and the address, is provided to Boffo Real Estate by third parties. We have obtained this information from sources we believe to be reliable; however, we have not verified and do not guarantee its accuracy. The information contained should not be relied upon and you should make your own enquiries and seek advice in respect of this property or any property on this website.
Looking to purchase this property as an investment? Speak to our Property Management team to see how we can assist.
RLA 313174
