Generous Block with Wide Frontage!
This solid brick home is positioned on a generous 585sqm (approximate) block with a wide 19.2m (approximate) frontage and provides great potential for the lucky new owner.
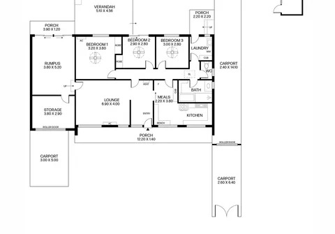
Providing three bedrooms, two living areas and a kitchen accompanied by an adjoining dining space. Outdoors includes a verandah, garden shed and two carports to accommodate up to five vehicles.
Offering a wonderful lifestyle close to numerous amenities including a short drive to Tea Tree Plaza and a short walk to Sir Frank Berryman Reserve, comprising a large grassed area for the kids and pets to play.
You might look to make some cosmetic upgrades and add significant value over time or capitalise on the generous block dimensions to build your dream home, equally perfect for investors looking to rent out and reap the rewards. The choice is yours! (subject to all necessary consents).
Features that make this home special:
- Master bedroom with ceiling fan, split system air conditioner and built-in robe
- Two additional bedrooms both complete with ceiling fans
- Bedroom two with built-in robe
- Spacious lounge room with air conditioning
- Kitchen with gas cooktop and ample bench and cupboard space
- Meal’s area adjacent kitchen with built-in bench and cupboard
- Bathroom with separate bath and shower
- Separate toilet for convenience
- Laundry with direct rear yard access
- Low maintenance rear yard with verandah
- Garden shed
- Carport with roller door to accommodate three vehicles
- Two additional single carports
Located within walking distance to Clovercrest Village for all your shopping requirements. Public transport options and a variety of local parks are both nearby. The ever-popular Waterworld Aquatic Centre is only a short drive away. Additionally in close proximity to a variety of excellent public and private schools.
All information contained herewith, including but not limited to the general property description, price and the address, is provided to Boffo Real Estate by third parties. We have obtained this information from sources we believe to be reliable; however, we have not verified and do not guarantee its accuracy. The information contained herewith should not be relied upon and you should make your own enquiries and seek advice in respect of this property or any property on this website.
The Vendor's Statement (Form 1), the Auction Contract and the Conditions of Sale will be available for perusal by members of the public - (A) at our office located at 78-80 North East Road, Walkerville for at least 3 consecutive business days immediately preceding the auction; and (B) at the place at which the auction is to be conducted for at least 30 minutes immediately before the auction commences.
Looking to purchase this property as an investment? Speak to our Property Management team to see how we can assist.
RLA 313174
