A Perfect Place to Call Home!
Have you been searching for the perfect first home, a new family home or looking to downsize in a fabulous location… look no further than this modern-day abode. Surrounded by quality homes alike with an inviting street presence and only moments away from Hausler Reserve and Teasdale Crescent Playground, this abode is perfect to move into straight away and start enjoying the lifestyle!
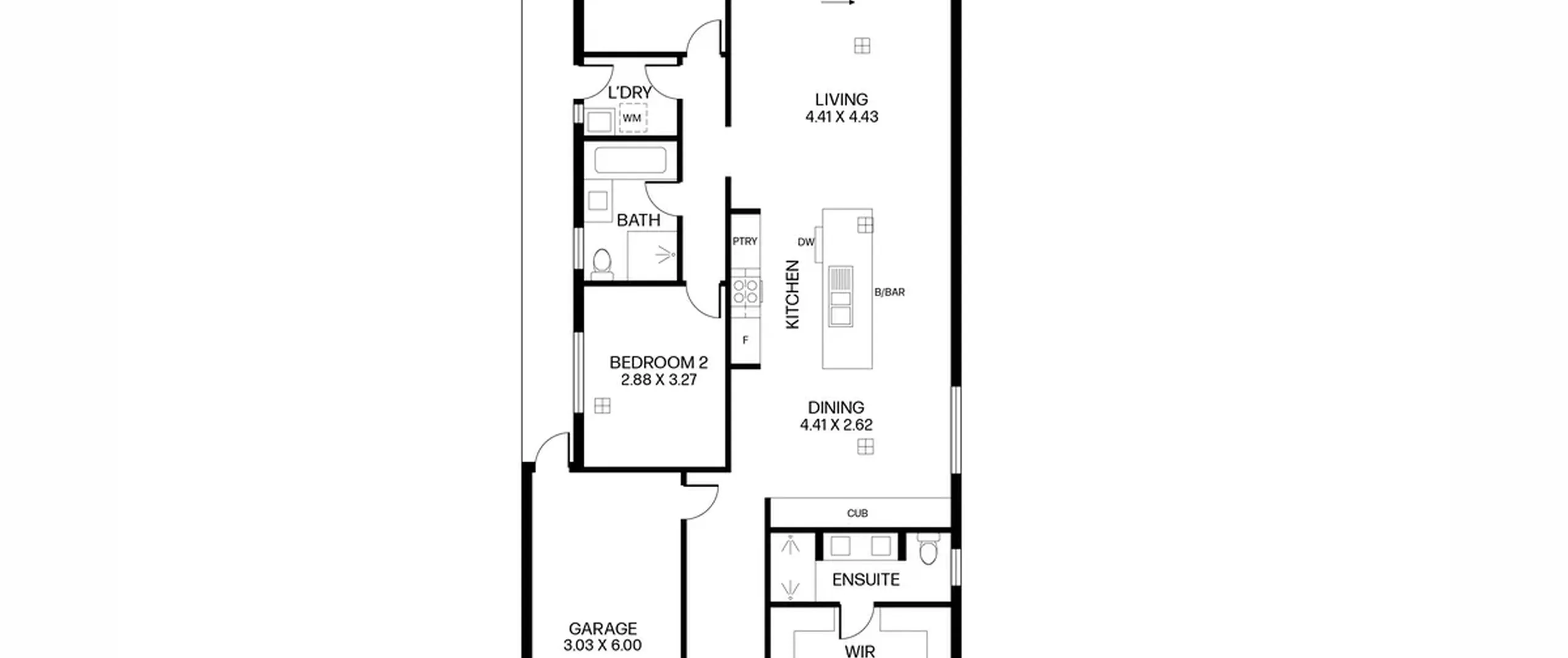
Inside, you will find a single storey floorplan that flows seamlessly from the front of the home right through to the rear yard. Offering three bedrooms, an open plan living space and easy breezy, low maintenance rear yard. Upon entry you will find the light and bright main bedroom complete with dreamy walk-in robe and stylish ensuite featuring on trend plantation shutters. An open-plan dining, kitchen and living area will be the heart of your home, tasteful with warm toned, easy-care flooring underfoot. The additional accommodation includes two bedrooms serviced by a central and convenient main bathroom.
Outside, a low maintenance grassed area and undercover entertaining with stylish feature herringbone red brick and raised timber garden bed. Completing this abode is a single car garage and driveway for additional off street carparking.
Features that make this home special:
- Master bedroom boasting walk-in robe and generous ensuite with double shower and his and hers basin
- Good-sized bedrooms 2 and 3
- Light-filled open-plan living, kitchen and dining area, offering wall-length built-in cupboards for additional storage
- Sleek modern kitchen with stainless steel oven, gas cooktop and dishwasher, ample cupboard space and complete with island bench and breakfast bar
- Sparkling main bathroom with separate bath and shower
- Laundry with external access
- Ducted air conditioning
- Gas hot water system
- NBN
- Paved undercover vernadah, perfect for hosting guests
- Good-sized no-maintenance backyard with artificial lawns
- Single garage with roller door and both internal and external access
- Modern facade complemented by a well-manicured front garden and driveway for additional off-street parking
Located in close proximity to reserves, parks, learning centres and a variety of schools including Goodstart Early Learning, Temple Christian College, Thomas More College and Paralowie R-12. Shopping centres including Hollywood Plaza and Parabanks Shopping Centre are both nearby. All of this and easy access to the Northern Expressway!
For further information please contact Robert Lonie on 0419 129 009 or Gavin Apacible on 0455 800 848 or 8269 7711 (office).
All information contained herewith, including but not limited to the general property description, price and the address, is provided to Boffo Real Estate by third parties. We have obtained this information from sources we believe to be reliable; however, we have not verified and do not guarantee its accuracy. The information contained should not be relied upon and you should make your own enquiries and seek advice in respect of this property or any property on this website.
The Vendor's Statement (Form 1), the Auction Contract and the Conditions of Sale will be available for perusal by members of the public - (A) at our office located at 78-80 North East Road, Walkerville for at least 3 consecutive business days immediately preceding the auction; and (B) at the place at which the auction is to be conducted for at least 30 minutes immediately before the auction commences.
RLA 313174
