Expansive Living with Versatile Appeal
Welcome to this well-maintained residence, proudly held by its original owner. Set on a generous 689sqm (approximate) allotment with an impressive 18m frontage (approximate), this property presents exceptional potential - whether you’re looking to renovate, redevelop or simply enjoy as a family home. Perfectly positioned for convenience, you'll find a wide range of amenities nearby, including shopping centres, schools, public transport and recreational facilities - offering a lifestyle of comfort and connectivity.
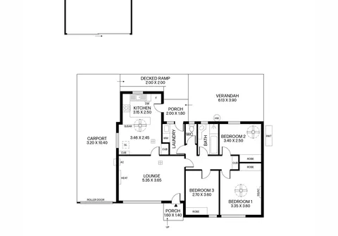
This one owner home offers a dedicated lounge that seamlessly connects to the kitchen and meals area, creating a functional and inviting living space. The right wing of the home features three generously sized bedrooms and a centrally located bathroom for added convenience. Step outside to a spacious verandah that overlooks a well-maintained, established garden - an ideal setting for entertaining family and friends. Completing the package is a versatile shed/workshop in the backyard, offering a private and practical space for various needs.
Features that make this home special:
- Bright and airy front lounge equipped with both air conditioning and a heater
- Generously sized main bedroom featuring a ceiling fan, built-in robe and split system air conditioner
- Two additional bedrooms, both with built-in robes; bedroom two also includes a ceiling fan
- Light-filled kitchen and meals area with skylight, freestanding oven and cooktop, dishwasher and plenty of bench and cupboard space
- Main bathroom complete with shower, bathtub, floor to ceiling tiles and a separate toilet for added practicality
- Functional laundry with built-in storage and direct access to the backyard
- Expansive undercover verandah, perfect for entertaining in all seasons
- Double-length carport with drive-through access to a garage/shed, ideal for a workshop or extra vehicle storage
- Chicken coop at the rear
- 18m frontage (approximately)
Ideally positioned close to a range of quality schools, including Thomas More College, Parafield Gardens Primary and High Schools and The Pines Primary. Enjoy the convenience of nearby shopping at Hollywood Plaza and Martins Plaza, along with easy access to the Northern Expressway for effortless commuting.
All information contained herewith, including but not limited to the general property description, price and the address, is provided to Boffo Real Estate by third parties. We have obtained this information from sources we believe to be reliable; however, we have not verified and do not guarantee its accuracy. The information contained should not be relied upon and you should make your own enquiries and seek advice in respect of this property or any property on this website.
The Vendor's Statement (Form 1), the Auction Contract and the Conditions of Sale will be available for perusal by members of the public - (A) at our office located at 78-80 North East Road, Walkerville for at least 3 consecutive business days immediately preceding the auction; and (B) at the place at which the auction is to be conducted for at least 30 minutes immediately before the auction commences.
Looking to purchase this property as an investment? Speak to our Property Management team to see how we can assist.
RLA 313174
