A Bright and Modern Home with a Spectacular Outdoor Entertaining Area!
Sit back, relax and entertain in this gorgeous light-filled, open plan home providing enough space to entertain and expand with the growing family. Boasting a modern, neutral decor inside, low maintenance landscaping, and an impressive undercover outdoor entertaining area. Set amongst reserves and wetlands for the whole family to enjoy.
Perfectly suited to couples, families and downsizers looking to take advantage of a secure and private property without compromising on comfort. Equally a great opportunity for investors looking to add a quality home to their portfolio.
Features that make this home special:
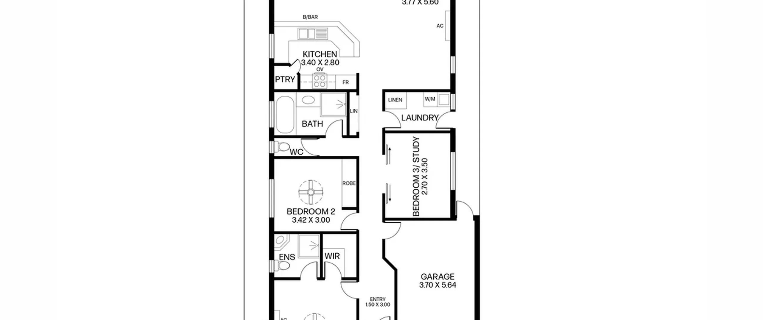
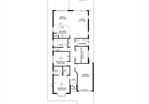
- Master bedroom with bay window, walk-in robe, ensuite, ceiling fan and split system air conditioner
- Good sized bedroom two complete with built-in robe and ceiling fan
- Bedroom three or study
- Light filled open plan living, dining and kitchen area with split system air conditioner and glass sliding door that leads to the outdoor entertaining
- Modern kitchen with gas cooktop, Bosh dishwasher, breakfast bar and ample bench and cupboard space
- Main bathroom with separate bath and shower + separate toilet
- Separate laundry with direct access to the rear yard
- Outdoor entertaining area with a pitched roof, ceiling fan and café blinds, making entertaining a dream all year round
- Low maintenance rear yard with lawn area
- Single garage with internal and rear yard access
Additional features:
- Security cameras
- Gas hot water
- Solar electrical system
- Alarm and electric roller shutters for added security
Located in close proximity to a variety of schools including Thomas More College, Parafield Gardens Primary, Parafield Gardens High and The Pines Primary. Shopping centres including Hollywood Plaza and Martins Plaza are both nearby. All of this and easy access to the Northern Expressway!
All information contained herewith, including but not limited to the general property description, price and the address, is provided to Boffo Real Estate by third parties. We have obtained this information from sources we believe to be reliable; however, we have not verified and do not guarantee its accuracy. The information contained should not be relied upon and you should make your own enquiries and seek advice in respect of this property or any property on this website.
RLA 313174
