Spectacular Family Home in an Idyllic Sanctuary with Unmissable Views!
This grand multi-level residence offers its new owner a rarely found opportunity located in the prestigious suburb of Panorama with remarkable views of the Adelaide City and scenic coastline.
Situated on a generous 667sqm (approximate) fully landscaped block, along a beautiful tree-lined cul-de sac and nestled amongst other quality homes. This circa 1985 solid brick custom-built home of immense proportions presents a wonderful opportunity for families of all sizes, offering an enviable lifestyle with several reserves surrounding the property and the CBD less than 10kms away.
Providing multiple formal and informal living areas with the heart of the home featuring a spacious open plan kitchen and dining area where your family can eat, laugh and relax together with ease.
A unique aspect of this home that creates significant appeal includes an acousticly correct well-appointed home theatre with a kitchenette and bathroom that can be utilised as a self-contained unit/5th bedroom/home office/business/studio that is perfect for the extended family or teenager.
Sought-after character features include ceiling roses, fireplace, high ceilings and timber features throughout. A rare offering for such a property to be situated close to all amenities and have the private country style living, this home is not to be missed!
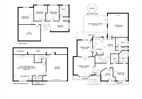
Ground level comprising of:
- Large master bedroom with walk-in robe, balcony and ensuite featuring dual basins, spa bath and floor to ceiling tiling
- Study/home office with balcony
- Light filled formal lounge with feature bay window showcasing the beautiful outdoor views
- Balcony accessible from the entryway with picturesque views
- Divine open plan kitchen and dining area with floorboards and led downlights
- Solid timber kitchen overlooking the rear yard and dining area, complete with stainless steel appliances, walk-in pantry, Blanco dishwasher, built-in microwave, built-in Blanco oven, ceramic cooktop, breakfast bar and ample bench and cupboard space
- Formal dining room with outdoor access
- Second living room with feature fireplace and vaulted ceilings with exposed beams
- Separate spacious laundry with chute
- Separate toilet with basin
- Undercover outdoor entertaining area with plenty of room for the pets and kids to play
- Established low maintenance front and rear yard with a gazebo to sit and enjoy the views
Upper ground level comprising of:
- Bedrooms 2, 3 and 4 all of generous size, bedrooms 3 and 4 complete with built-in robes
- Family sized bathroom with separate bath and shower, featuring floor to ceiling tiling
- Separate toilet for convenience
- Retreat
- Attic, perfect for storage
Lower ground level comprising of:
- Self-contained unit/home theatre/home office complete with a kitchenette, split system reverse cycle air conditioner, built-in cabinetry, Sony HD projector with 140' screen, Klipsch speakers and Pioneer amp included with the sale
- Bathroom with toilet and shower
- Double garage with automatic roller door and internal access
- Storage/workshop room
- Off street parking
Additional features:
- 8KW solar electrical system
- Ducted reverse cycle air conditioning
Superbly located less than 10kms (approximately) from the Adelaide CBD and only minutes from Pasadena Foodland, local shops and cafes. A stone's throw from quality schools including Scotch college, Mercedes college, Cabra college Clapham primary, St Therese primary and Flinders University. In close proximity to some of Adelaide's best beaches including Brighton, Somerton and Glenelg. All this and less than 10 minutes drive to Hyde Park or Wesfield Marion for cafes and shopping
For further information please contact Robert Lonie on 0419 129 009 or 8269 7711 (office).
RLA 200591
The Vendor's Statement (Form 1), the Auction Contract and the Conditions of Sale will be available for perusal by members of the public -
(A) at our office located at 87 North East Road, Collinswood for at least 3 consecutive business days immediately preceding the auction; and
(B) at the place at which the auction is to be conducted for at least 30 minutes immediately before the auction commences.
