Coastal Living on Large Allotment!
Prime opportunity to secure this well maintained home situated on a large 740sqm (approximate) block with a 21.9m (approximate) frontage and 33m (approximate) depth.
Commandingly positioned just minutes from the beach and offering the new owner a multitude of options including: live in and enjoy, renovate and add your own personal touches, rent out and reap the rewards or redevelop (subject to council consent). Astute buyers will surely be impressed with this well maintained property and the potential to add value.
Features that make this home special:
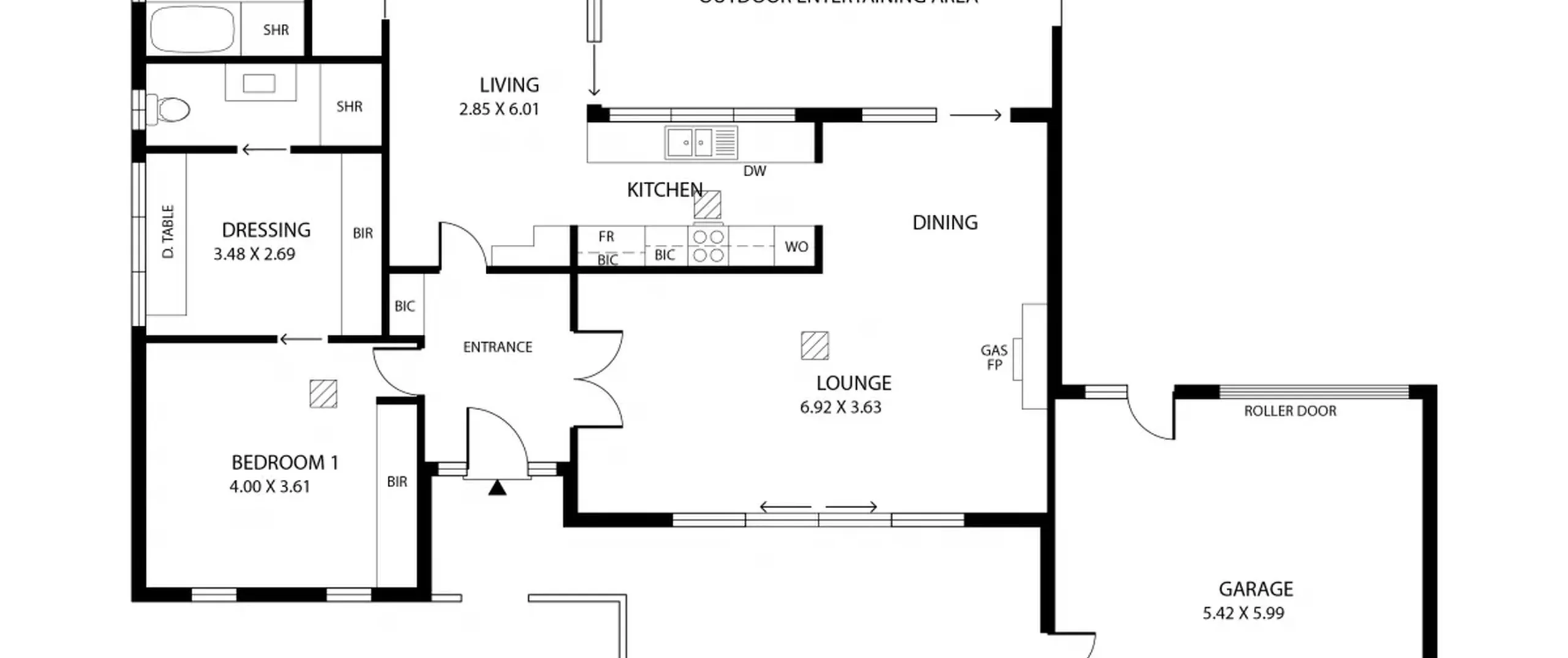
- Large master suite with built-in robe, ensuite and dressing room including a dresser and built-in robe
- Generous sized bedrooms 2 and 3, bedroom 2 with access to rear yard
- Large formal lounge room with gas heater and sliding doors opening to large tiled front courtyard
- Alby Turner timber kitchen with gas cooktop, dishwasher and ample bench and cupboard space
- Dining room adjacent kitchen
- Additional living area
- Main bathroom with separate bath and shower + separate toilet
- European laundry
- Ducted evaporative air conditioning
- Paved undercover outdoor entertaining area
- Manicured front and rear gardens, sprinkler system on front lawn
- Garden shed
- Gas hot water service
- Double garage with one automatic roller door and drive through access
- Rates are currently $1,170.00 per year
Perfectly positioned within only a short walk to North Haven beach, Jaycee Park and WAL Kilpatrick reserve for your leisure. A short drive to Haven Cove Marina, the Cruising Yacht Club of SA and North Haven Golf Club. All of this and only 5.5kms (approximately) from vibrant Semaphore and 14.9kms (approximately) to Henley Square. This is a prime property in close proximity to all that you need.
For further information please contact Robert Lonie on 0419 129 009 or Scott McNeela on 0455 800 848 or 8269 7711 (office).
RLA 200591
