Stylish, Low-Maintenance Living in a Prime Newton Location!
Boasting a striking modern facade and contemporary styling, this stunning low-maintenance home is ready for you to move in and enjoy. Tucked away in a quiet pocket of Newton, it offers both privacy and convenience—just a lovely stroll to Newton Central and nearby bus stops on Graves Street for easy commuting.
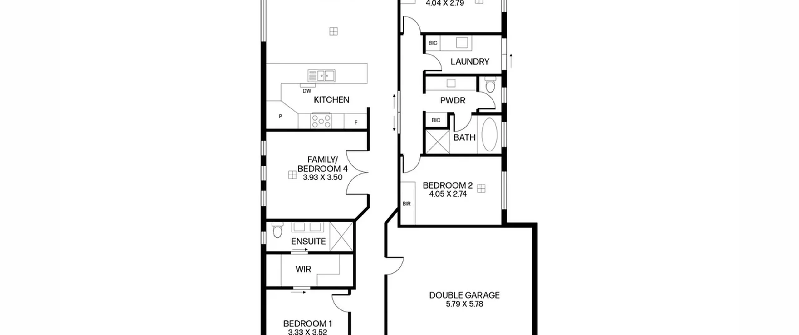
Designed to suit a variety of lifestyles, this home features three spacious bedrooms, with the flexibility to convert a generous family room into a fourth bedroom if desired. Two well-appointed bathrooms add to the comfort and practicality, making this an ideal choice for first-home buyers, downsizers, young families, or savvy investors.
Step inside to discover a light-filled interior with a fresh, neutral décor that enhances the sense of space. The stylish kitchen is a true highlight, featuring a premium Smeg 900mm gas cooktop, Caesarstone benchtops, and ample storage—perfect for effortless meal prep and entertaining. The open-plan living and dining area flows seamlessly to the tiled alfresco space, which can be fully enclosed with pull-down blinds, allowing for year-round enjoyment. The easy-care backyard provides just the right amount of space to create your own veggie patch or garden retreat without the hassle of high maintenance.
Adding to the home's flexibility, a generous family room with double doors offers the perfect space for a second living area or an additional bedroom. A double garage completes the functional layout, ensuring convenience and security for your daily lifestyle.
Don’t miss this fantastic opportunity to secure a contemporary, move-in-ready home in a sought-after location!
Features that make this home special:
- Master bedroom with walk-in robe and ensuite featuring dual basins
- Bedrooms 2 and 3, both with built-in robes
- Family room with the option to use as a 4th bedroom
- Light-filled open-plan living and dining area with sliding doors to the outdoor alfresco
- Stylish kitchen featuring a breakfast bar, 900mm Smeg gas cooktop, dishwasher, and ample storage
- Modern main bathroom with a powder room, bath, shower, and separate toilet
- Laundry with linen press and external access
- Ducted reverse-cycle air conditioning throughout
- Tiled alfresco entertaining area with blinds
- Low-maintenance yard
- Double garage with automatic panel-lift door and direct internal access
- 2.7m high ceilings
There is a multitude of reserves and parks at your fingertips including the Thorndon Park Reserve with walking trails, playground and picnic areas, ideal for your recreation and exercise. Campbelltown City Soccer and Social Club, Black Hill Conservation Park and several other smaller reserves are only a short distance away. Enjoy the convenience of having Newton Village and Newton Central Shopping Centre located nearby, perfect for your day-to-day shopping requirements.
Local unzoned primary schools including Charles Campbell College, East Torrens Primary, Paradise Primary and Thorndon Park Primary Schools are all nearby. Charles Campbell College Senior School and quality private education are all within an arm’s reach with St. Francis of Assisi, St. Joseph’s Hectorville, St Ignatius Senior College and Rostrevor College all nearby.
All information contained herewith, including but not limited to the general property description, price and the address, is provided to Boffo Real Estate by third parties. We have obtained this information from sources we believe to be reliable; however, we have not verified and do not guarantee its accuracy. The information contained should not be relied upon and you should make your own enquiries and seek advice in respect of this property or any property on this website.
The Vendor's Statement (Form 1), the Auction Contract and the Conditions of Sale will be available for perusal by members of the public - (A) at our office located at 78-80 North East Road, Walkerville for at least 3 consecutive business days immediately preceding the auction; and (B) at the place at which the auction is to be conducted for at least 30 minutes immediately before the auction commences.
Looking to purchase this property as an investment? Speak to our Property Management team to see how we can assist.
RLA 313174
