Elevate Your Lifestyle with this Exceptional Residence in Prestigious Newton!
Discover the epitome of luxury living on one of Newton's most prestigious streets, where this spectacular residence graces a generous 504sqm (approximate) allotment. Boasting a multitude of formal and informal living spaces and a spacious backyard oasis which includes a sparkling in-ground swimming pool. Anyone who appreciates space and the opportunity to add their own style will adore this grand family abode – a home sure to be enjoyed for years to come by the next lucky owners.
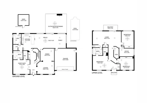
As you approach, the beautifully manicured front garden sets the stage for what awaits inside. Upon stepping through the entrance, a wide hallway welcomes you, leading you past the elegant formal lounge and dining areas, seamlessly flowing into an inviting open-plan kitchen, living, and meals area. The chef's kitchen is a culinary haven, featuring top-of-the-line appliances, a walk-in pantry, ample cupboard space, expansive benchtops, and a desirable breakfast bar.
The show-stopping layout of this residence further impresses with a guest bedroom on the lower level, complete with a walk-in robe and access to a well-appointed bathroom. Ascend to the upper level, where you'll find three bedrooms, including a commodious master suite that boasts a large walk-in robe, a private balcony, and access to a luxurious bathroom equipped with a bath, shower, and a separate toilet. Completing the upper level is a versatile home office, which could easily serve as a nursery or an additional bedroom, and a spacious living room that doubles as a private home theatre and opens onto an enclosed balcony with breathtaking views, making this executive home a grand haven.
Entertaining family and friends will be a delight in the undercover entertaining area, overlooking the serene backyard with its shimmering in-ground swimming pool—an ideal setting for the entire family to relish. Parking is a breeze with a double garage and an extra-wide driveway offering ample off-street parking.
This home boasts exceptional size and is guaranteed to captivate even the most discerning of buyers. Don't hesitate; this opportunity won't last long!
Upper level comprising:
- Commodious master suite complete with ceiling fan, walk-in robe, built-in robe, balcony access and access to the luxe bathroom with bath, shower and separate toilet
- Bedrooms 2 and 3 of good size and both offering ceiling fans and built-in robes
- Home office
- Large, light-filled living room
- Neutral bathroom with bath, shower and separate toilet, complete with floor-to-ceiling tiles
- Ducted air conditioning
- Two enclosed balconies, providing the perfect spot to enjoy your morning coffee with views
Lower level comprising of:
- Elegant formal lounge and dining room
- Light-filled open plan living and meals area with access to the outdoor entertaining area
- Immaculate kitchen featuring walk-in pantry, breakfast bar, 900mm gas cook top, ample cupboard and bench space plus dishwasher
- Sleek bathroom with dual basins, toilet and shower, compete with floor-to-ceiling tiles
- Large laundry with built-in joinery and external access
- Ducted air conditioning
- Outdoor entertaining area with pitched roof pergola, complete with café blinds and ceiling fan, overlooking the backyard, perfect for hosting guests in the warmer months
- Sparkling in-ground swimming pool
- Garden shed
- Double garage with automatic panel lift door and internal access
Other features to further entice:
- Solar system with 29 panels
There is a multitude of reserves and parks at your fingertips including the Thorndon Park Reserve with walking trails, playground and picnic areas, ideal for your recreation and exercise. Campbelltown City Soccer and Social Club, Black Hill Conservation Park and several other smaller reserves are only a short distance away. Enjoy the convenience of having Newton Village Shopping Centre located just a few hundred meters away, perfect for your day-to-day shopping requirements.
Local unzoned primary schools including Charles Campbell College, East Torrens Primary, Paradise Primary and Thorndon Park Primary Schools are all nearby. Charles Campbell College Senior School and quality private education are all within an arm’s reach with St. Francis of Assisi, St. Joseph’s Hectorville, St Ignatius Senior College and Rostrevor College all nearby.
All information contained herewith, including but not limited to the general property description, price and the address, is provided to Boffo Real Estate by third parties. We have obtained this information from sources we believe to be reliable; however, we have not verified and do not guarantee its accuracy. The information contained should not be relied upon and you should make your own enquiries and seek advice in respect of this property or any property on this website.
The Vendor's Statement (Form 1), the Auction Contract and the Conditions of Sale will be available for perusal by members of the public - (A) at our office located at 78-80 North East Road, Walkerville for at least 3 consecutive business days immediately preceding the auction; and (B) at the place at which the auction is to be conducted for at least 30 minutes immediately before the auction commences.
RLA 313174
