Opportunity Awaits!
Attention all first home buyers and investors! On offer is an opportunity to enter into the growing market of Morphett Vale with this home in very original condition.
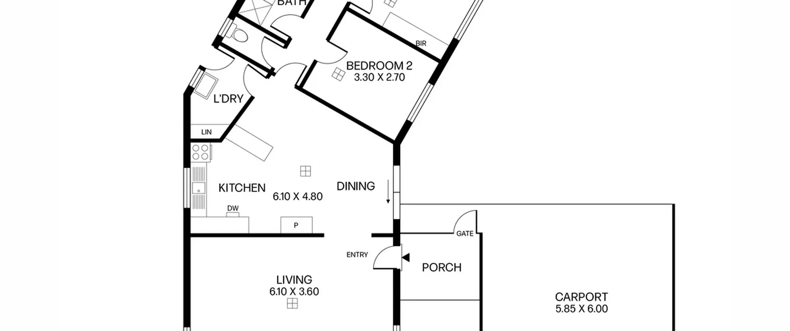
Features that make this home special:
- Generous 594sqm (approximate) allotment with a 18m (approximate) frontage
- Three good sized bedrooms
- Large living upon entry
- Open plan dining and kitchen with access to the backyard
- Original kitchen
- Separate laundry with linen storage and external access
- Original bathroom with separate bath and shower
- Separate toilet
- Good size backyard with garden sheds
- Double carport with roller door access
Superbly located just a short drive to some of Adelaide’s best beaches, including Port Noarlunga, Christies Beach and Moana Beach. Within close proximity from all the shopping and entertainment that Westfield Marion and Colonnades Shopping Centre have to offer. Within walking distance to the wonderful Wilfred Taylor Reserve, Recreation and Sports Centres and a variety of excellent public and private schools, including Morphett Vale East Primary, Wirreanda Secondary School and Woodcroft College. Additionally only 30 minutes (approximately) to the CBD and in close proximity to the ever popular McLaren Vale wine region with an abundance of restaurants and wineries for you to enjoy, this is the lifestyle you have been longing for!
Please Note: The Vendor and Purchaser hereby agree that the property is sold on an ‘as is’ basis. Neither the Vendor nor the Agent can guarantee the working order of any inclusions, fixtures or fittings or any other matter relating to the property.
For further information please contact Jimmy Wu on 0417 874 084, Joe Zollo on 0455 933 439 or 8269 7711 (office).
All information provided has been obtained from sources we believe to be accurate, however, we cannot provide any guarantee and we accept no liability for any errors or omissions (including but not limited to a property's land size, floor plans and size, building age and condition). Interested parties should make their own inquiries and obtain their own legal advice.
The Vendor's Statement (Form 1), the Auction Contract and the Conditions of Sale will be available for perusal by members of the public -
(A) at our office located at 78-80 North East Road, Walkerville for at least 3 consecutive business days immediately preceding the auction; and
(B) at the place at which the auction is to be conducted for at least 30 minutes immediately before the auction commence
RLLA 313174
