Your Very Own Home Among the Gum Trees, A Little Slice of Hillside Paradise!
Nestled within the tranquil embrace of nature, the prospect of owning a home among the gum trees is an extraordinary and exceedingly rare opportunity. This unique foothills offering, spanning a remarkable expanse of approximately 7.990 hectares, stands as a testament to the sheer scarcity of such a gem. As urban life relentlessly encroaches upon the untouched beauty of the natural world, this property emerges as a sanctuary of seclusion and serenity. Imagine waking up each day to the gentle rustle of leaves.
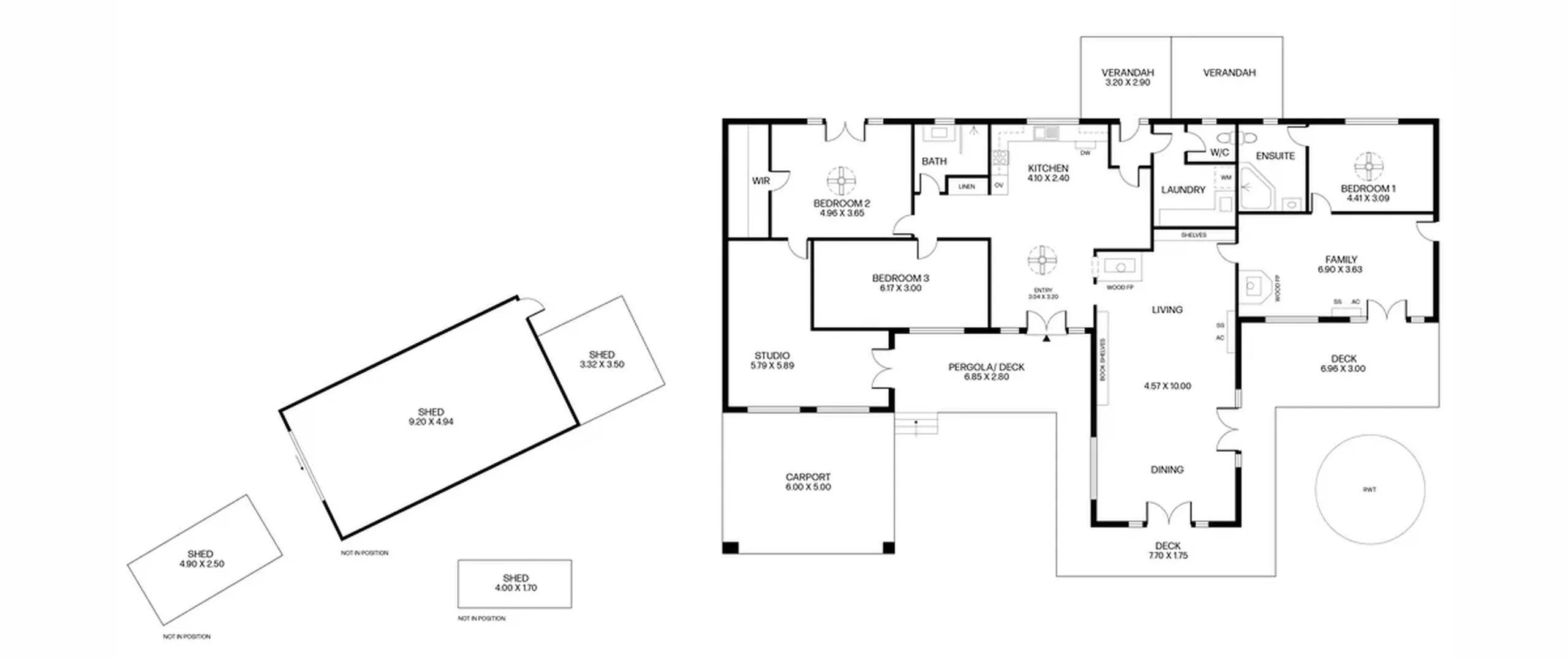
At the heart of this unparalleled estate rests a charming family abode, a haven where cherished memories are destined to be made. With three bedrooms, and multiple living areas the home ensures ample space for both privacy and togetherness, a delicate balance that forms the cornerstone of family life. But it is not just the home itself that sets this offering apart; it's the sprawling canvas of land that accompanies it.
Features that make this home special:
- Main bedroom with a grand & private ensuite complete with ceiling fan
- Additional bedrooms two and three, bedroom two with walk in robe
- Central main bathroom
- Easy flowing and open plan living and dining space accommodating year-round comfort with split system air conditioning and charming wood fireplace
- Large and inviting family space with wood fireplace
- On entry a spacious kitchen with stainless appliances and dreamy views of the vibrant landscapes surrounding
- Expansive wrap around deck to the front of the home with multiple entry points
- Studio space
- Vibrant outdoor space with multiple fruit trees
- Exclusive views from multiple spots around the home
- 2 x plumbed rainwater tanks 50KL and 30KL
- 1x 2KL manual rainwater tank
This is a unique offering of country lifestyle perfectly combined with city convenience. This substantial land holding in Montacute boasts such peace and tranquillity that you may not realize you are only 21km (approximately) to the Adelaide CBD. Additionally located close by to pubs, wineries and the Adelaide Hills.
All information contained herewith, including but not limited to the general property description, price and the address, is provided to Boffo Real Estate by third parties. We have obtained this information from sources we believe to be reliable; however, we have not verified and do not guarantee its accuracy. The information contained should not be relied upon and you should make your own enquiries and seek advice in respect of this property or any property on this website.
RLA 313174
