Contemporary Townhouse Living
This fantastic 2019 built, low maintenance home provides a great opportunity for those seeking a secure and private property without compromising on comfort and location. Boasting a huge list of features and conveniently positioned, this is a home that will truly appeal to those already living in the area and looking to downsize. Equally it represents a great opportunity for first home buyers and astute investors.
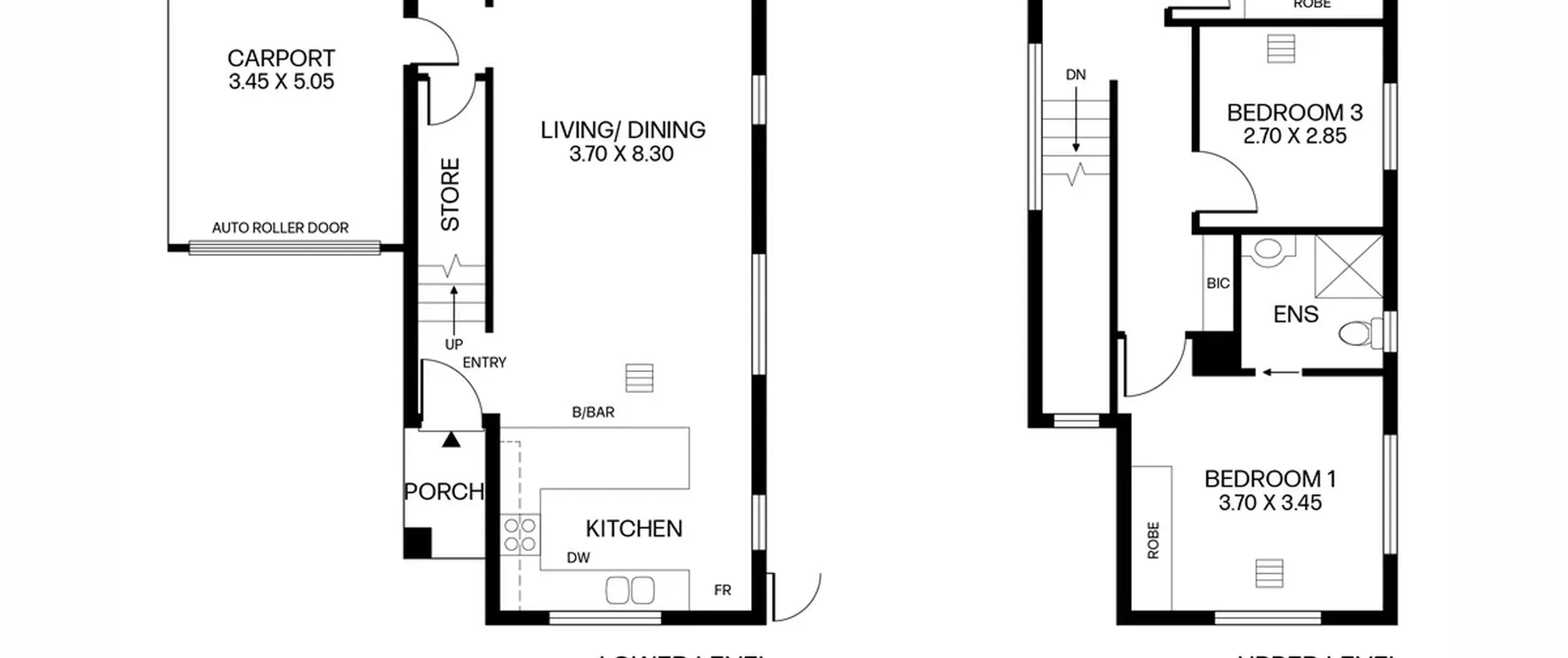
Upper level comprising of:
- Bedroom 1 with built-in robe and ensuite
- Good sized bedroom 2 and 3; bedroom 2 with built-in robe
- Modern main bathroom with bath and separate shower
- Ducted air conditioning throughout
Lower level comprising of:
- Light filled open plan living and dining
- Contemporary kitchen with breakfast bar, stainless steel appliances and ample cupboard and bench space
- Functional laundry
- Separate 3rd toilet
- Ducted air conditioning throughout
- Storage under stairs
- Verandah
- Fully fenced, low maintenance yard with rain water tank
- Single carport with automatic roller door and internal access
Within walking distance to Modbury West School and Clovercrest Village and only a short distance to all the shopping and entertainment that Tea Tree Plaza has to offer. Public transport including the City via The O-Bahn Interchange, sporting clubs, Modbury Hospital and a variety of both public and private schools are all only a short distance away. All this and just 14km (approximately) from the Adelaide CBD.
For further information please contact Jimmy Wu on 0448 225 571, Carlos Carosi on 0428 909 228 or 8269 7711 (office).
RLA 200591
