Sophisticated Living
This stunning home has been exceptionally designed with a carefully considered floorplan that boasts a perfect natural flow from the exquisite living areas to the outdoor entertaining area. Offering its new owner a luxurious lifestyle with quality fixtures and fittings throughout, this opulent home will simply take your breath away!
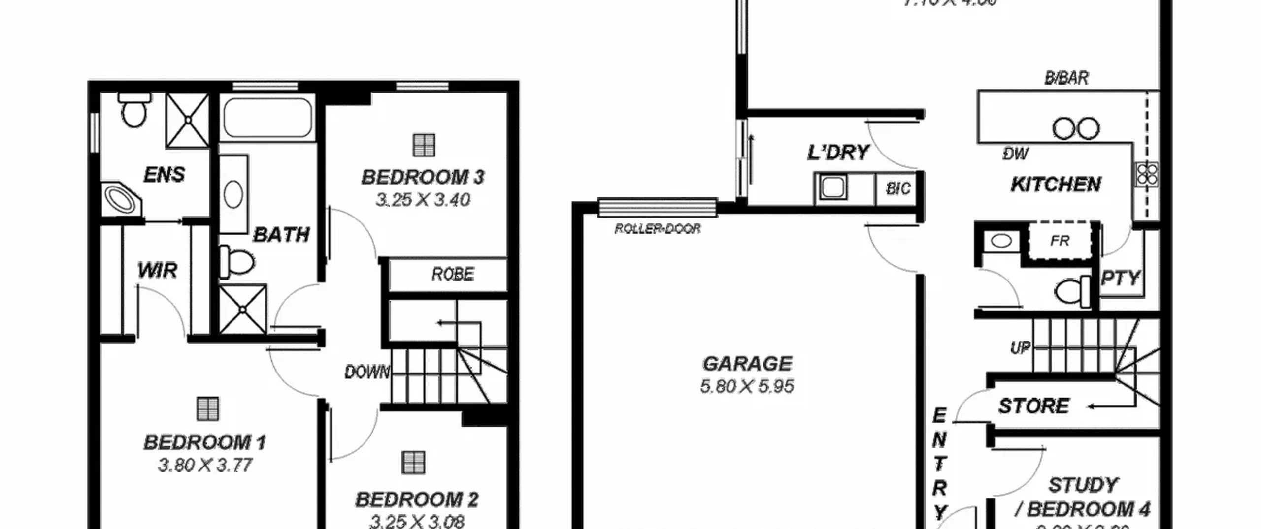
Upper level comprising of:
- Large master bedroom with walk-in robe and immaculate ensuite
- Good-sized bedrooms 2 and 3, bedroom 3 with built-in robe
- Sparkling main bathroom with floor to ceiling tiles and separate bathroom and shower
Lower level comprising of:
- Formal lounge room
- Modern, stylish kitchen with breakfast bar, dishwasher, gas cooktop and walk-in pantry
- Spacious open plan living and dining area with high quality floating floor boards
- Powder room incorporating valuable third toilet
- Separate spacious laundry
- Additional storage space under the staircase
- Zoned reverse cycle air conditioning and LED lighting throughout
- Large alfresco, perfect for outdoor entertaining
- Double garage with roller doors, direct internal entry and drive through access
- Fully fenced and secure courtyard
Ideally located only a short distance to The Heights School, local shops and many public transport options. All of the shopping and entertainment that Tea Tree Plaza has to offer nearby and easy access to the CBD via the O-Bahn!
For further information, please contact Jimmy Wu on 0417 874 084 or 8269 7711 (office).
RLA 200591
