Exceptionally Designed with Sophisticated Finishes
Be the envy of all of your friends with the exquisite living areas and luxurious ambience this brand new home offers. This opulent family home boasts quality fixtures and fittings throughout. With a fantastic street appeal and a modern elegant style inside, there is nothing to do but simply move in, relax and enjoy this fabulous property!
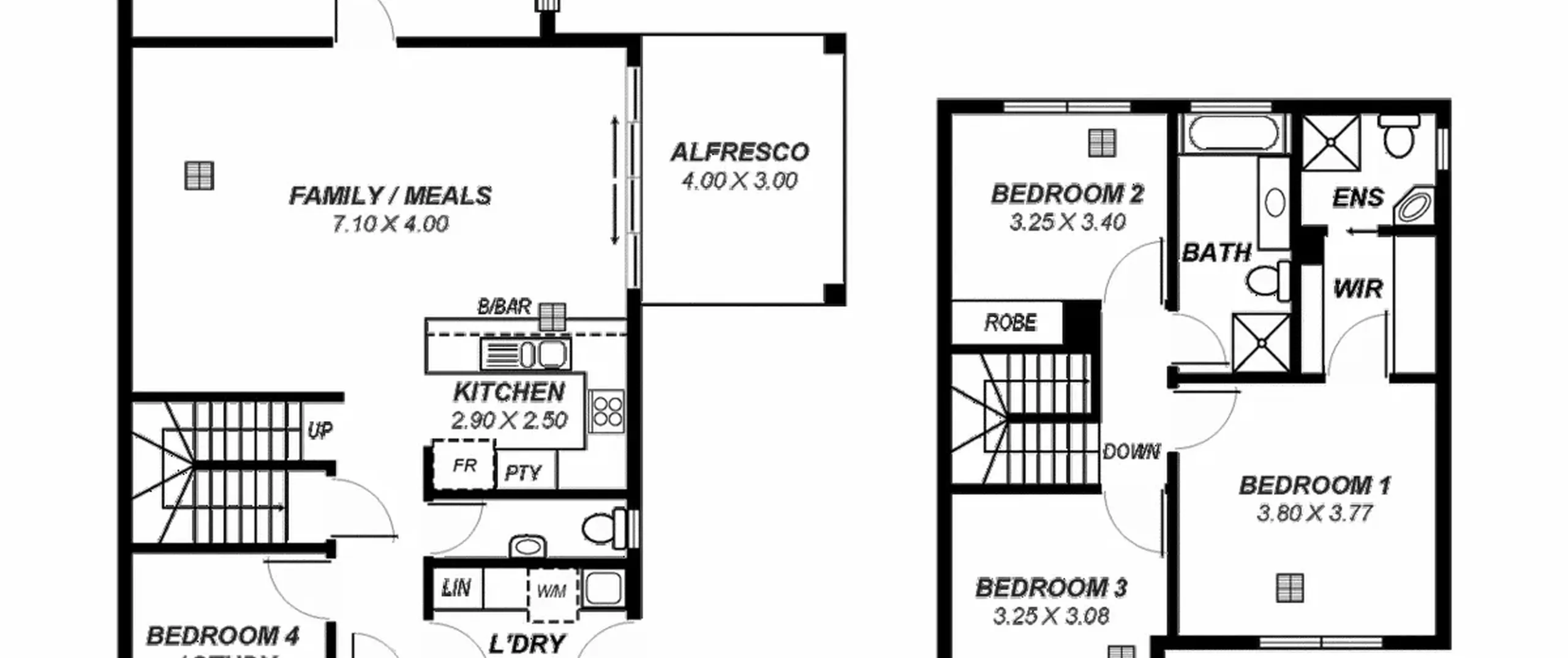
Upper level comprising of:
- Large master bedroom with walk-in robe and sparkling ensuite and boasting fantastic hills views
- Good-sized bedrooms 2 and 3, bedroom 2 with built-in robe
- Immaculate main bathroom with floor to ceiling tiles and separate bathroom and shower
Lower level comprising of:
- Spacious family and meals area
- Kitchen with breakfast bar, beautiful stone bench top, soft closing drawers, dishwasher and gas cooktop
- High quality floating floor boards to all living areas
- Good-sized bedroom 4 or study
- Powder room incorporating valuable third toilet
- Separate laundry
- Zoned reverse cycle air conditioning and LED lighting throughout
- Alfresco ideal for outdoor entertaining
- Double garage with roller door and direct internal entry
- Fully fenced and secure courtyard with artificial grass
Ideally located only a short distance to The Heights School, local shops and many public transport options. All of the shopping and entertainment that Tea Tree Plaza has to offer nearby and easy access to the CBD via the O’Bahn!
For further information, please contact Jimmy Wu on 0417 874 084 or 8269 7711 (office).
RLA 200591
