Convenient Low Maintenance Living
This fantastic low maintenance home provides a great opportunity for those seeking a secure and private property without compromising on comfort and location. This is a home that will truly appeal to those already living in the area and looking to downsize and equally represents a great opportunity for first home buyers and astute investors. The easy care home requires nothing to do but simply move in, relax and enjoy life as all the hard work has already been done!
Features that make this home special:
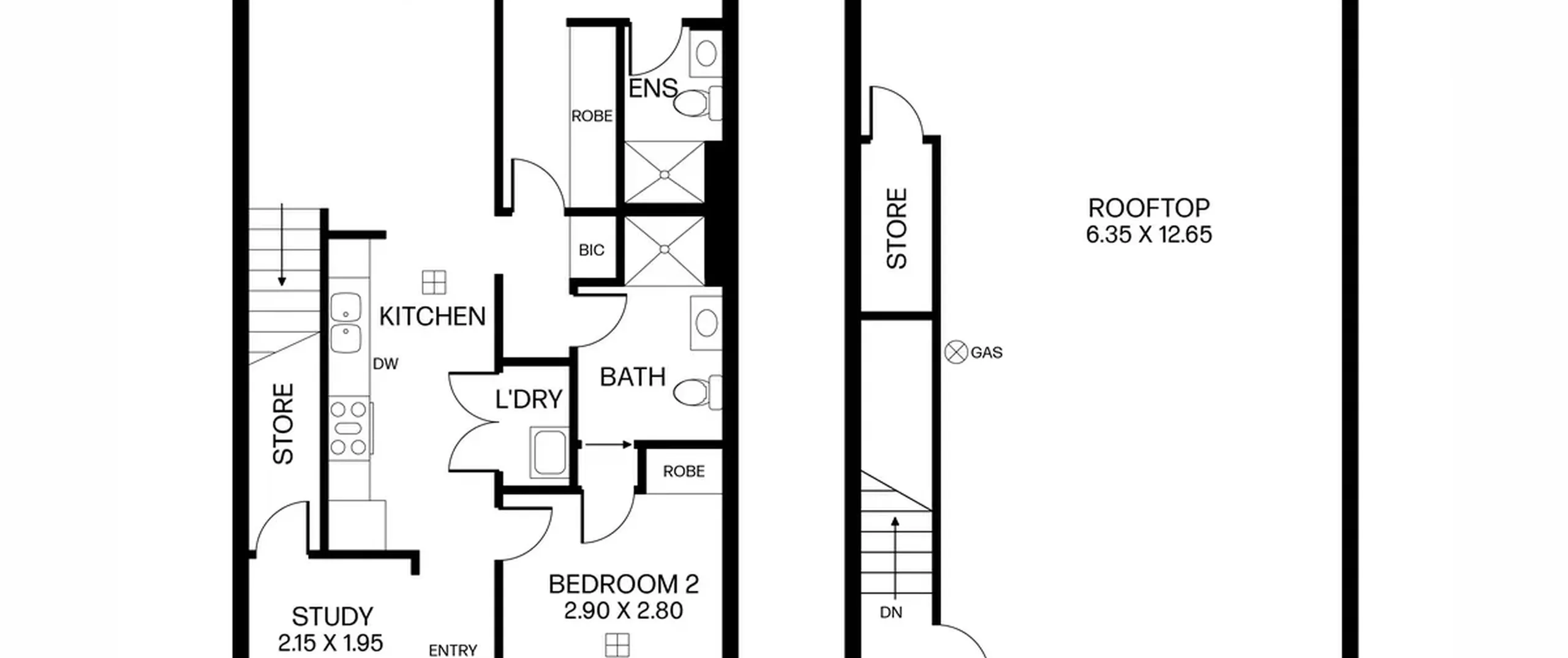
- 2 good sized bedrooms, both with built-in robes
- Bedroom 1 complete with ensuite and bedroom 2 with direct access to main bathroom
- Light filled open plan living/dining area with glass sliding doors leading through to the balcony
- Modern kitchen with dishwasher and ample above and under–bench cupboard space
- Immaculately kept main bathroom featuring floor to ceiling tiles
- Separate laundry with built in cupboard outside main bathroom
- Ducted air conditioning throughout
- Spacious balcony, perfect for outdoor entertaining while overlooking the views
- Private rooftop entertaining area
- Designated parking space for 1 vehicle
Additional Information:
- Admin Fund $777 per quarter
- Sinking Fund $110 per quarter
Conveniently located in the highly sought after suburb of Mawson Lakes and only minutes from Woolworths, Mawson Lakes Interchange and UniSA. All of this and only a short walk to all the recreational facilities, retail precincts and cafes that Mawson Lakes Centre has to offer.
For further information please contact Jimmy Wu on 0417 874 084, Carlos Carosi on 0428 909 228 or 8269 7711 (office).
All information provided has been obtained from sources we believe to be accurate, however, we cannot provide any guarantee and we accept no liability for any errors or omissions (including but not limited to a property's land size, floor plans and size, building age and condition). Interested parties should make their own inquiries and obtain their own legal advice.
The Vendor's Statement (Form 1), the Auction Contract and the Conditions of Sale will be available for perusal by members of the public - (A) at our office located at 78-80 North East Road, Walkerville for at least 3 consecutive business days immediately preceding the auction; and (B) at the place at which the auction is to be conducted for at least 30 minutes immediately before the auction commences.
RLA 200591
