Perfect Family Living!
This sensational family friendly abode offers something for everyone with plenty of room to spread out, relax and host guests! Boasting an updated floor plan, manicured gardens and an appealing facade, all sitting on a generous 695sqm (approximate) allotment, this home is sure to impress!
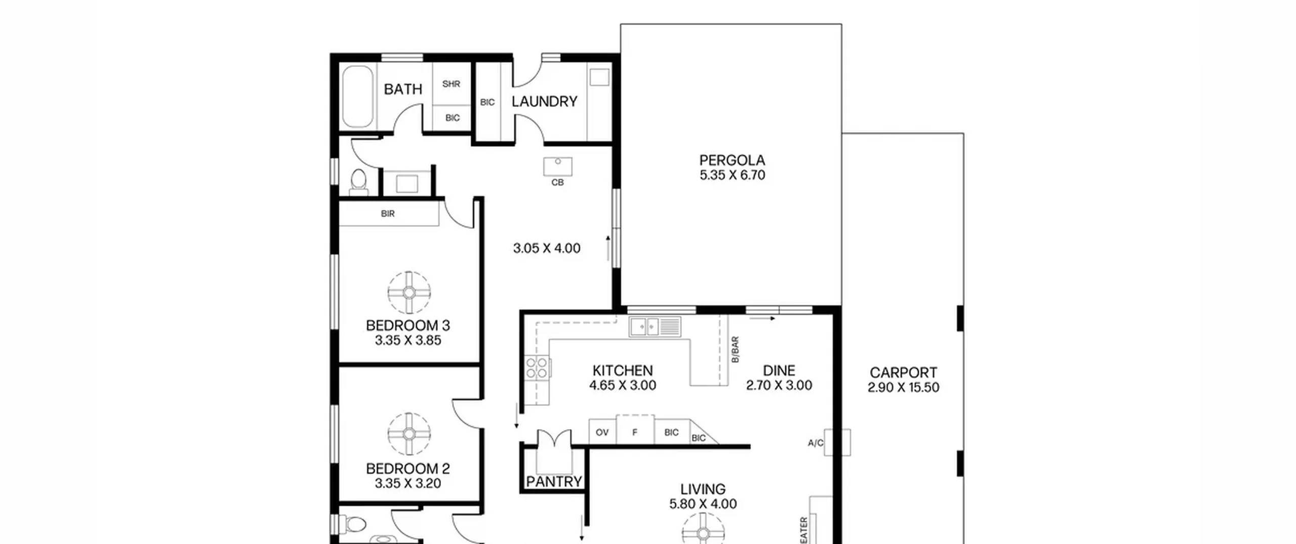
Inside accommodates three generous bedrooms; all serviced by a central three-way bathroom while the main bedroom also offers the added benefit of a private powder room for absolute convenience. Natural light fills the inside of this home, filtering throughout the separate lounge and spacious open plan kitchen, living and dining space with on-trend flooring underfoot. A recently renovated kitchen with ample storage space, sweeping benchtops and breakfast bar is sure to please the home cook.
Outside, a rear pergola entertaining area presents the perfect space for year-round entertaining. The backyard is also complete with plenty of room for the kids or pets to play and boasts a commodious shed; the DIY enthusiast is spoilt with space to complete their next project. A secure double-length carport with roller door and drive through access to the rear yard provides ample off-street parking.
You’ll have to be quick for this rare find!
Features that make this home special:
- Master bedroom featuring wall-length built-in robe, ceiling fan and private powder room
- Bedrooms 2 and 3 of good size, both with ceiling fans and bedroom 3 with built-in robe
- Spacious living area with ceiling fan, gas heater and reverse cycle air conditioning for year-round comfort
- Timeless kitchen with stainless steel oven and gas cooktop, filtered water tap, ample cupboard space, sweeping bench tops and complete with breakfast bar
- Dining area adjacent the kitchen and adjoining to the living area
- Separate lounge area with combustion heater to enjoy in the cooler months
- Three-way main bathroom with bath, separate shower and separate toilet
- Practical laundry with built-in cupboard storage and external access
- Generous pergola area, perfect for hosting friends and family
- Expansive backyard with established gardens and lawn for kids and pets to enjoy
- Rainwater tank and large shed
- Double-length carport with electric roller door
- Beautifully landscaped front gardens with paved driveway for additional off-street parking
- Solar panels with Tesla battery
- Roller shutters
Situated in the fantastic community of Lobethal and all the charm it has to offer. An abundance of walking trails, shopping facilities, both brewery and winery options available nearby providing a lifestyle hard to match. All this and you will be living within a 45 minute drive (approximately) to the CBD.
For further information please contact Carlos Carosi on 0428 909 228, Jimmy Wu on 0417 874 084 or 8269 7711 (office).
All information provided has been obtained from sources we believe to be accurate, however, we cannot provide any guarantee and we accept no liability for any errors or omissions (including but not limited to a property's land size, floor plans and size, building age and condition). Interested parties should make their own inquiries and obtain their own legal advice.
The Vendor's Statement (Form 1), the Auction Contract and the Conditions of Sale will be available for perusal by members of the public - (A) at our office located at 78-80 North East Road, Walkerville for at least 3 consecutive business days immediately preceding the auction; and (B) at the place at which the auction is to be conducted for at least 30 minutes immediately before the auction commences.
RLA 313174
